cena Mieszkania

530 160 PLN

cena za metr kw.

12 000 PLN

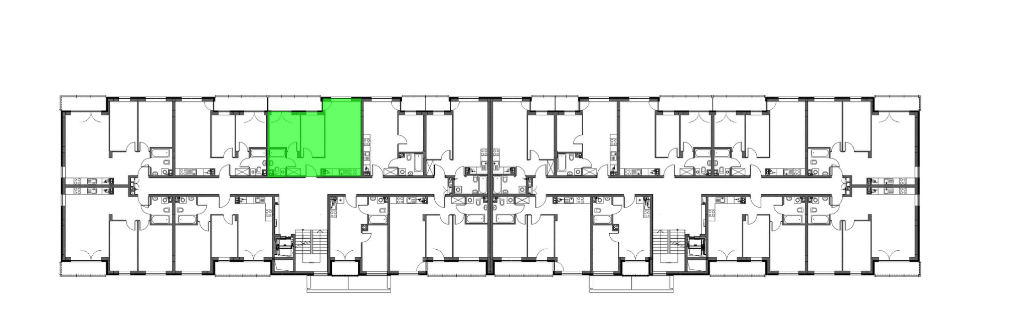
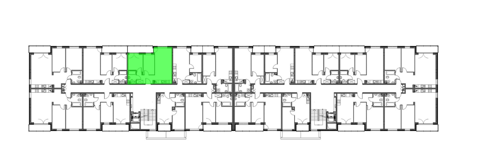
Budynek Konik Polny Budynek A
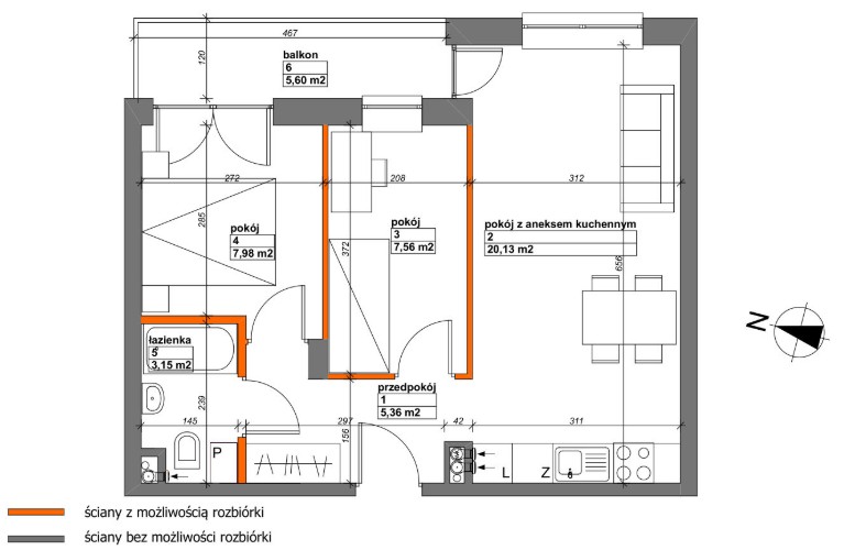
Powierzchnia 44,18 m2
Piętro 1 (Piętro I)
Pokoje 3
Całkowita cena brutto
530 160 PLN