cena Mieszkania

446 125 PLN

cena za metr kw.

12 500 PLN

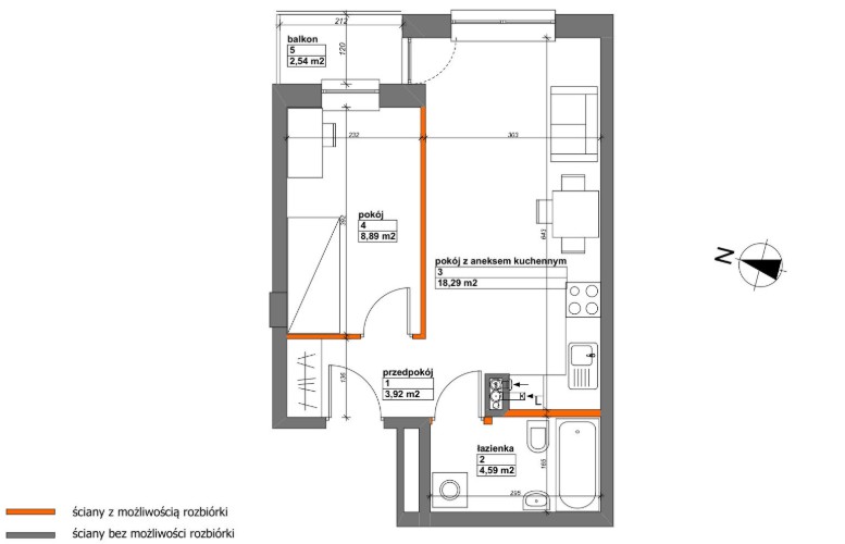
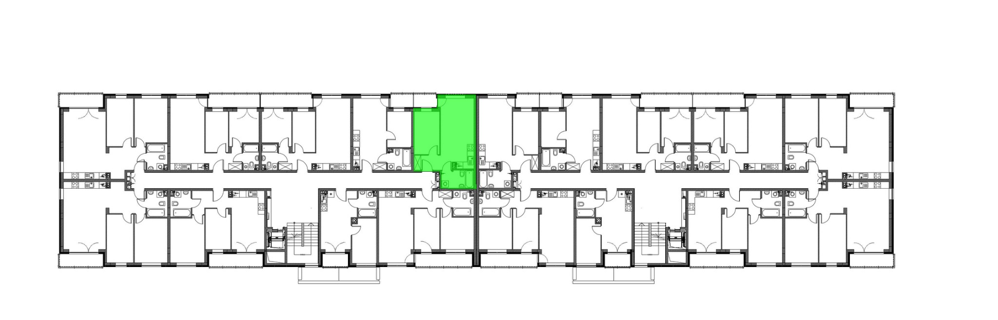
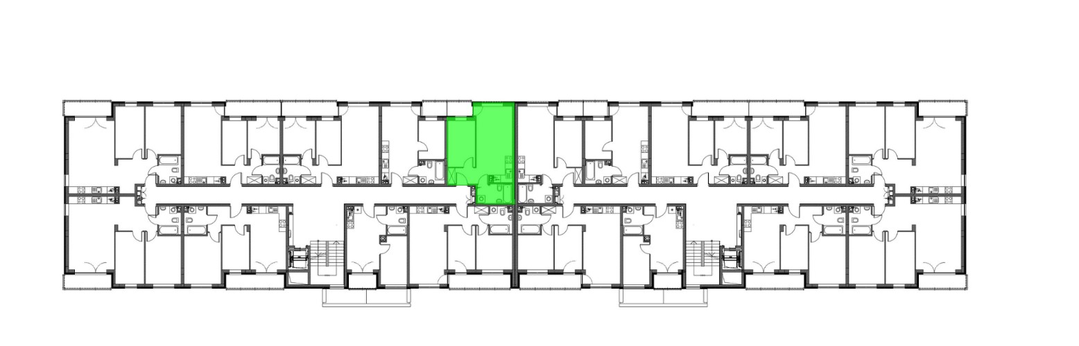
Budynek Konik Polny Budynek A
Powierzchnia 35,69 m2
Piętro 1 (Piętro I)
Pokoje 2
Całkowita cena brutto
446 125 PLN