cena Mieszkania

571 082 PLN

cena za metr kw.

12 200 PLN

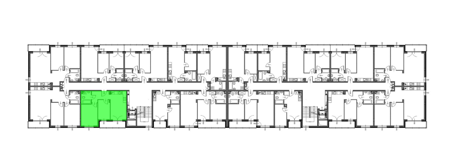
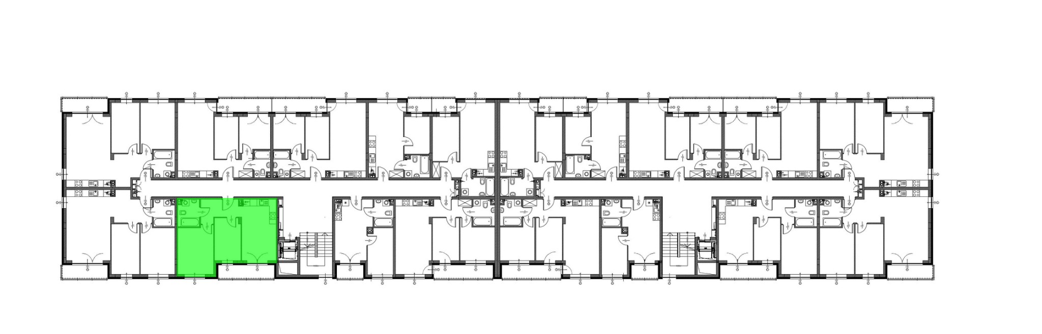
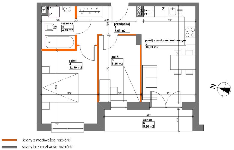
Budynek Konik Polny Budynek A
Powierzchnia 46,81 m2
Piętro 2 (Piętro II)
Pokoje 3
Całkowita cena brutto
571 082 PLN