cena Mieszkania

565 504 PLN

cena za metr kw.

12 800 PLN

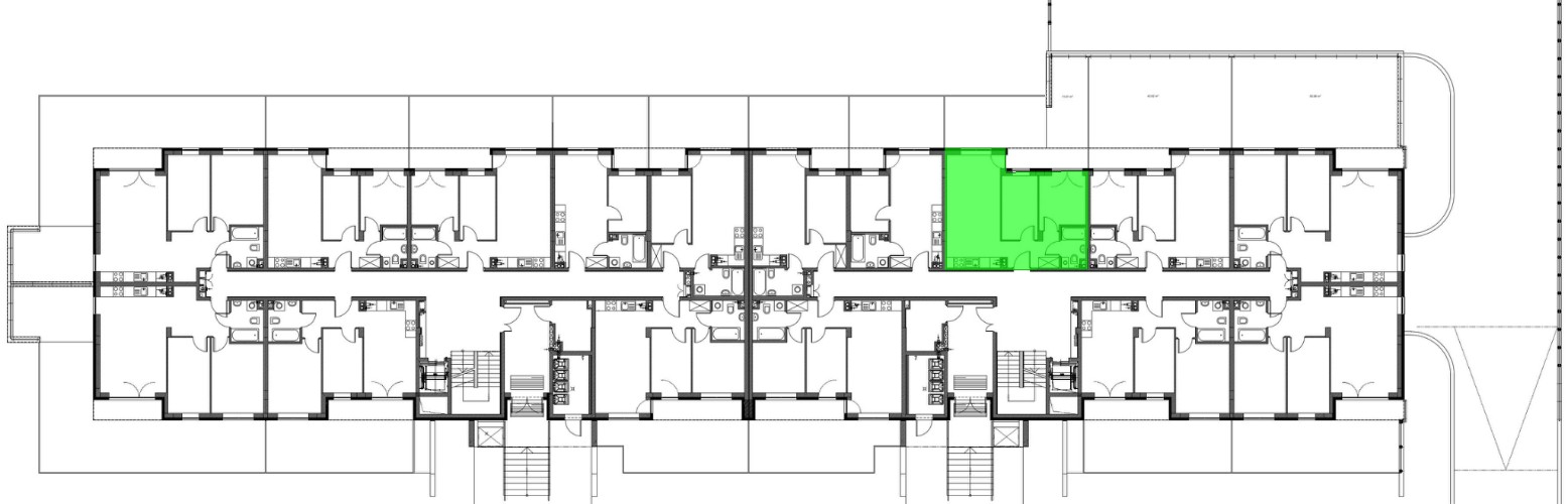
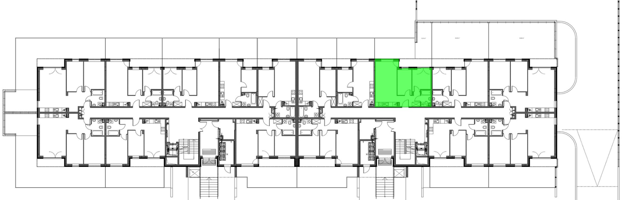
Budynek Konik Polny Budynek A
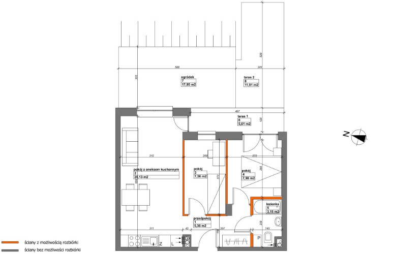
Powierzchnia 44,18 m2
Piętro 0 (Parter)
Pokoje 3
Całkowita cena brutto
565 504 PLN