cena Mieszkania

666 361 PLN

cena za metr kw.

11 300 PLN

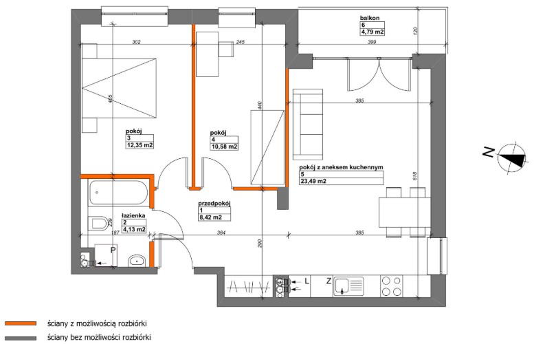
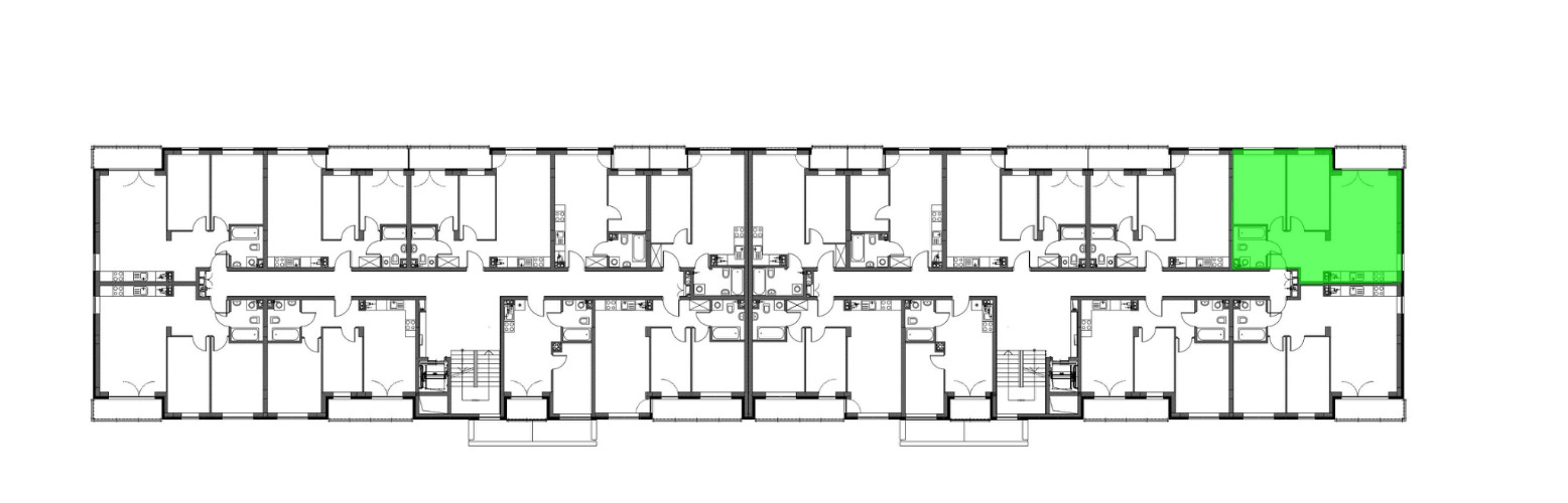
Budynek Konik Polny Budynek A
Powierzchnia 58,97 m2
Piętro 1 (Piętro I)
Pokoje 3
Całkowita cena brutto
666 361 PLN