cena Mieszkania

645 720 PLN

cena za metr kw.

10 950 PLN

Budynek Konik Polny budynek H
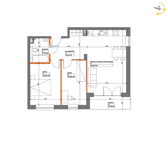
Powierzchnia 58,97 m2
Piętro 2 (Piętro II)
Pokoje 3
Całkowita cena brutto
645 720 PLN