cena Mieszkania

645 720 PLN

cena za metr kw.

10 950 PLN

Budynek Konik Polny budynek I
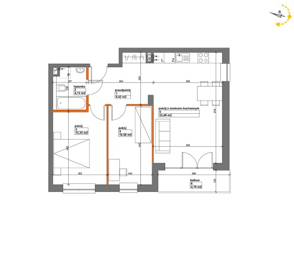
Powierzchnia 58,97 m2
Piętro 1 (Piętro I)
Pokoje 3
Całkowita cena brutto
645 720 PLN