cena Mieszkania

1 452 800 PLN

cena za metr kw.

20 000 PLN

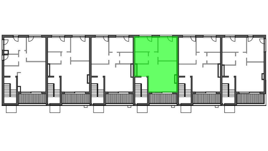
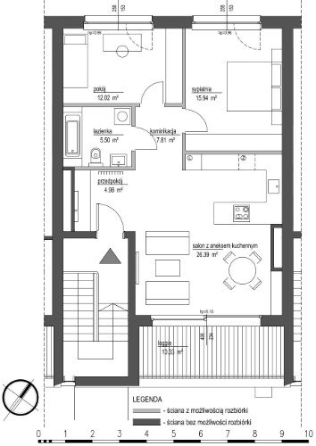
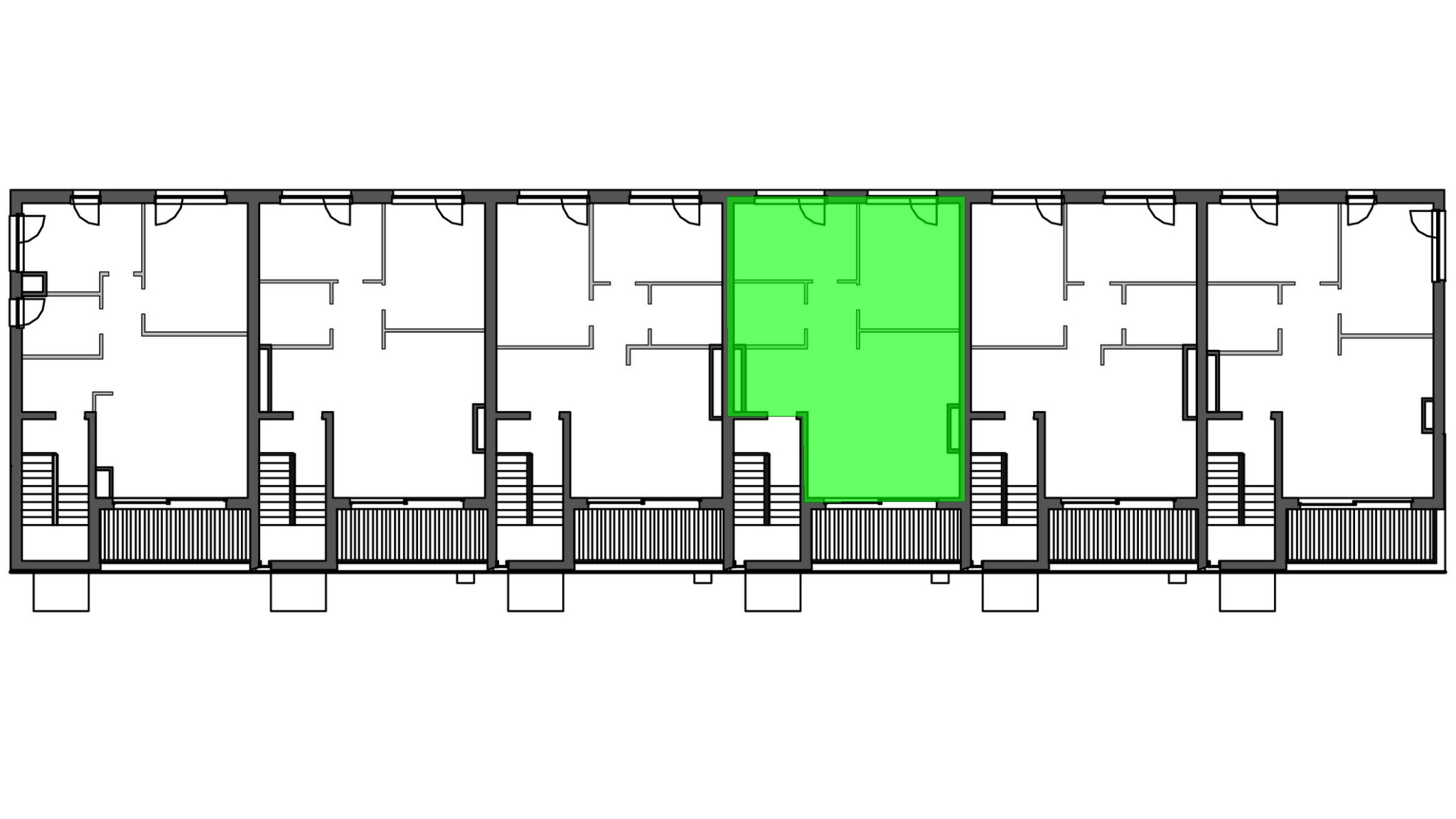
Budynek Szumu Drzew i Kwiatu Paproci K23 S1
Powierzchnia 72,64 m2
Piętro 2 (Piętro II)
Pokoje 3
Całkowita cena brutto
1 452 800 PLN