cena Mieszkania

2 463 000 PLN

cena za metr kw.

15 497 PLN

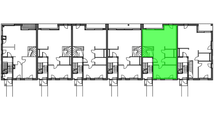
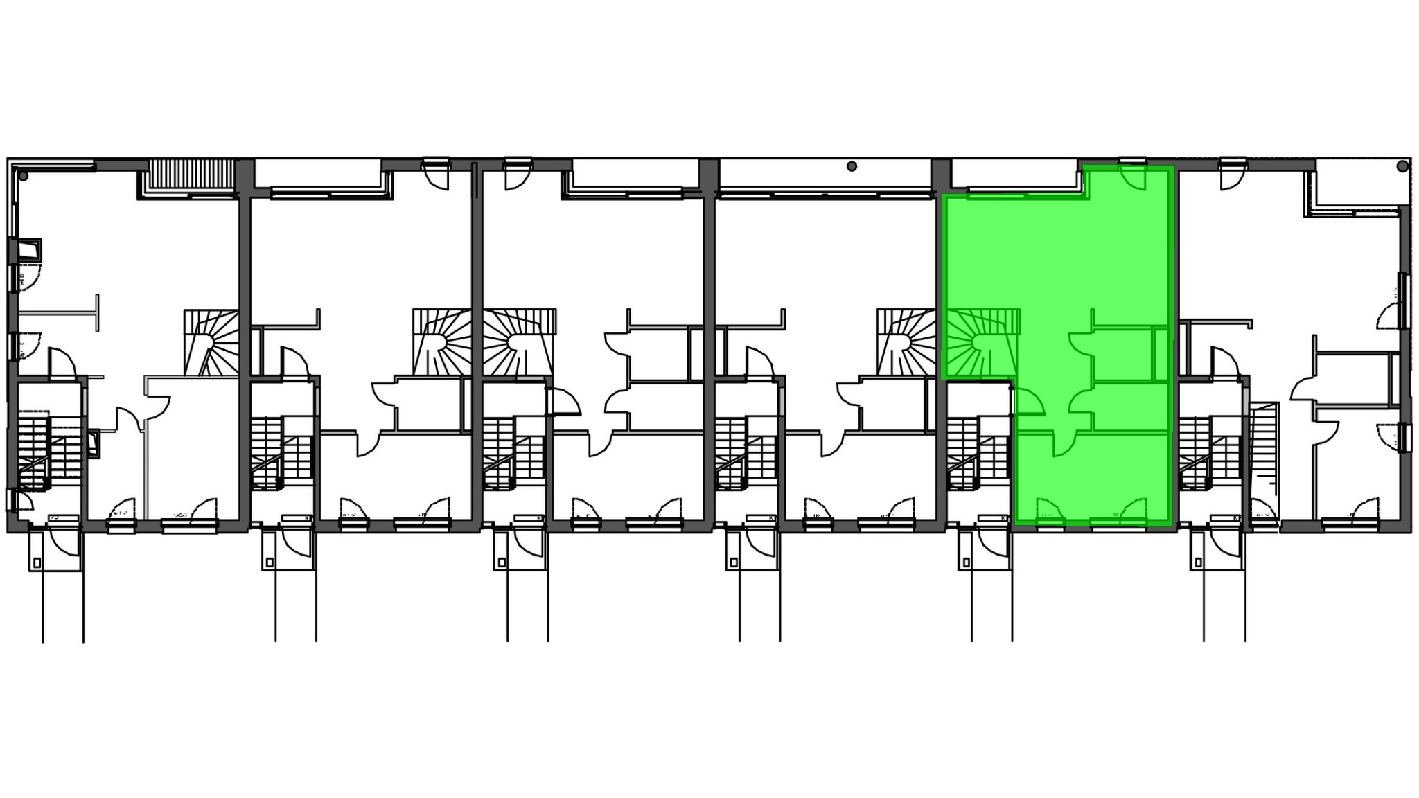
Budynek Szumu Drzew i Kwiatu Paproci K23 S1
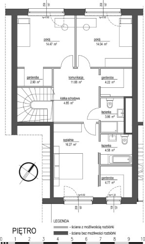
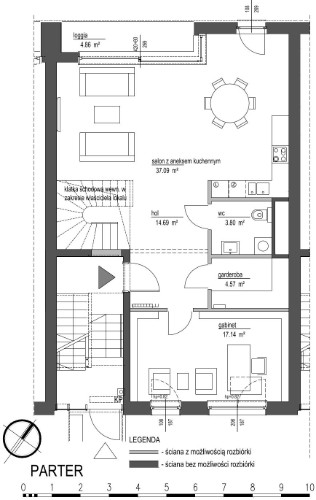
Powierzchnia 158,93 m2
Piętro 0 (Parter)
Pokoje 5
Całkowita cena brutto
2 463 000 PLN