cena Mieszkania

2 999 900 PLN

cena za metr kw.

15 000 PLN

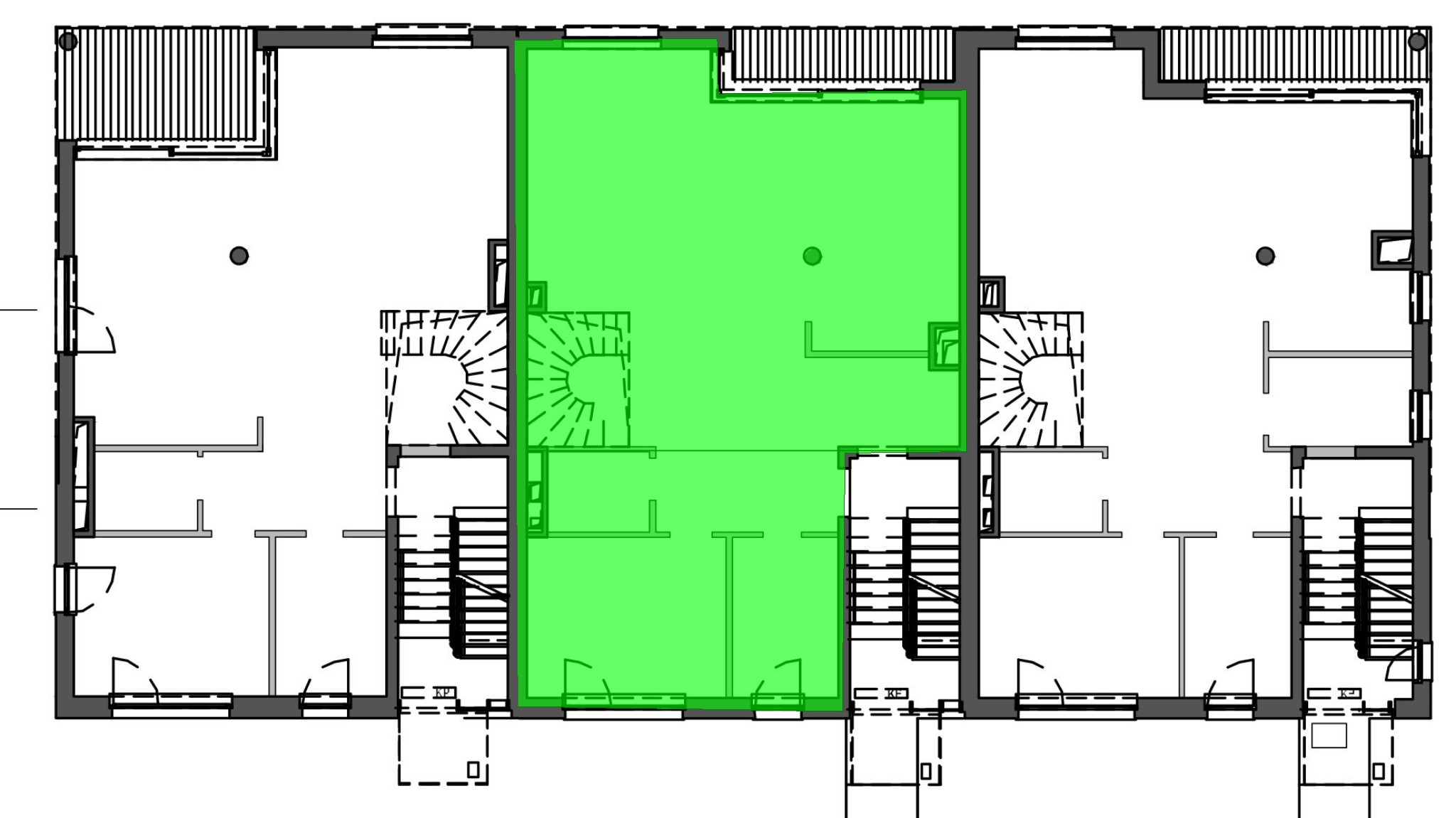
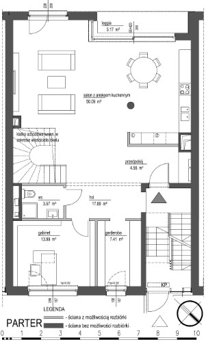
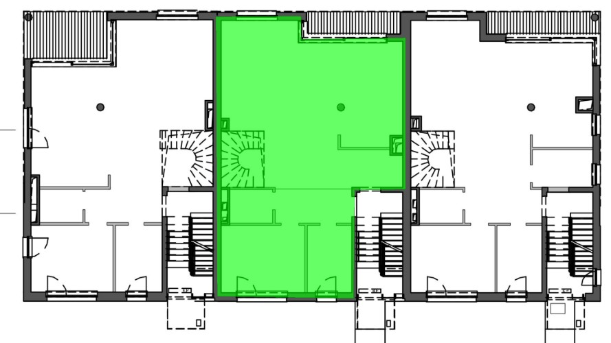
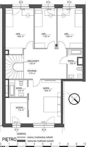
Budynek Szumu Drzew i Kwiatu Paproci K23 S2
Powierzchnia 199,99 m2
Piętro 0 (Parter)
Pokoje 6
Całkowita cena brutto
2 999 900 PLN