cena Mieszkania

3 357 000 PLN

cena za metr kw.

16 999 PLN

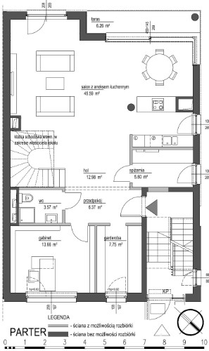
Budynek Szumu Drzew i Kwiatu Paproci K23 S2
Powierzchnia 197,48 m2
Piętro 0 (Parter)
Pokoje 6
Całkowita cena brutto
3 357 000 PLN