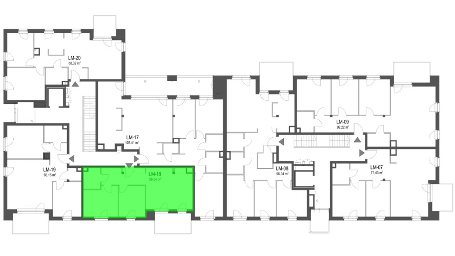
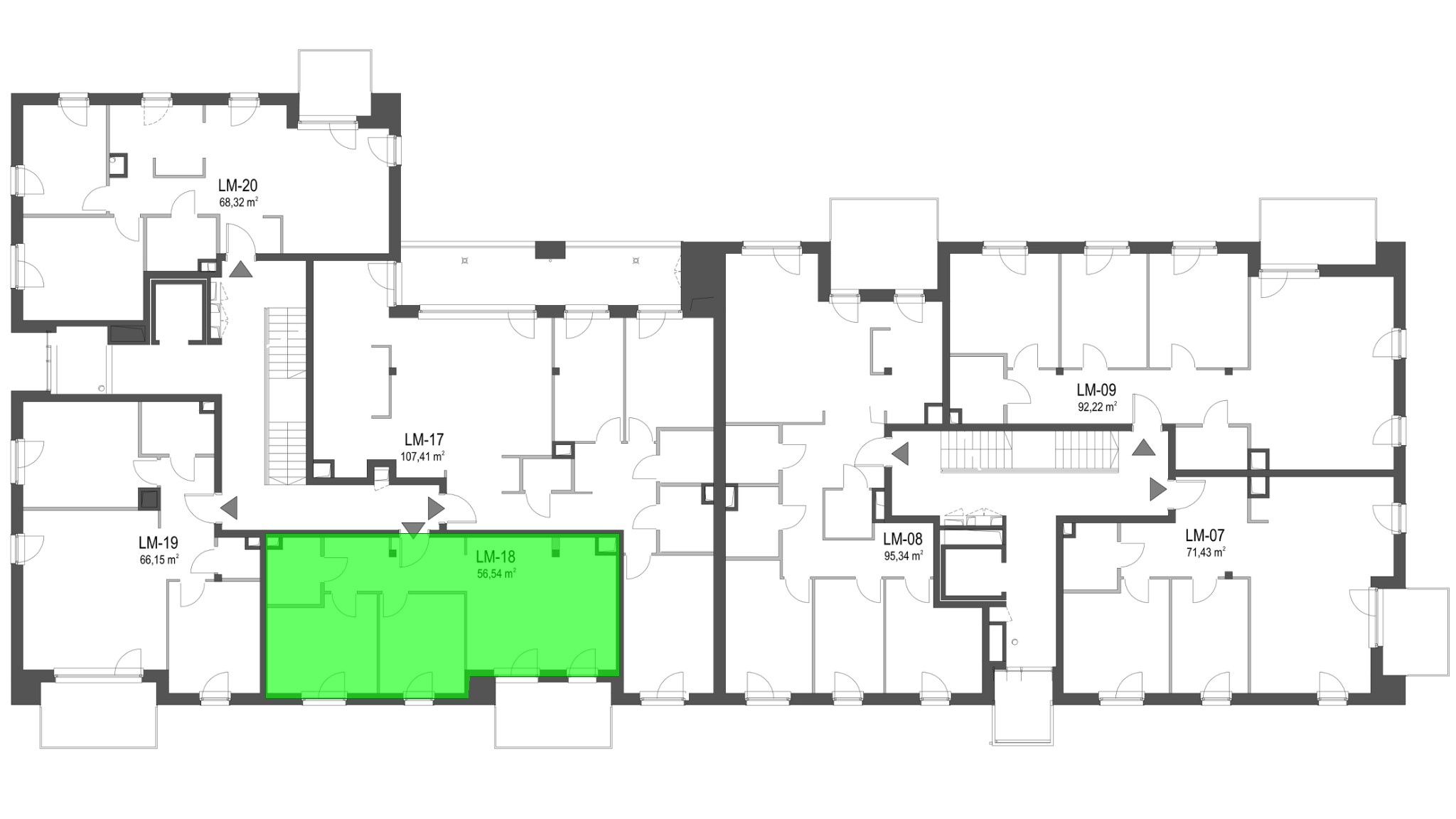
cena Mieszkania

1 413 500 PLN

cena za metr kw.

25 000 PLN

Budynek Szumu Drzew i Kwiatu Paproci K33-2
Powierzchnia 56,54 m2
Piętro 2 (Piętro II)
Pokoje 3
Całkowita cena brutto
1 413 500 PLN
Popup zamykający
Zamknij

Zostaw do siebie kontakt

Oświadczam, że zapoznałem się z polityką prywatności