cena Mieszkania

2 028 840 PLN

cena za metr kw.

22 000 PLN

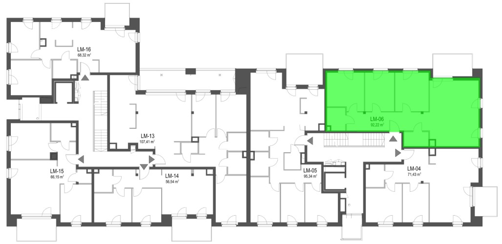
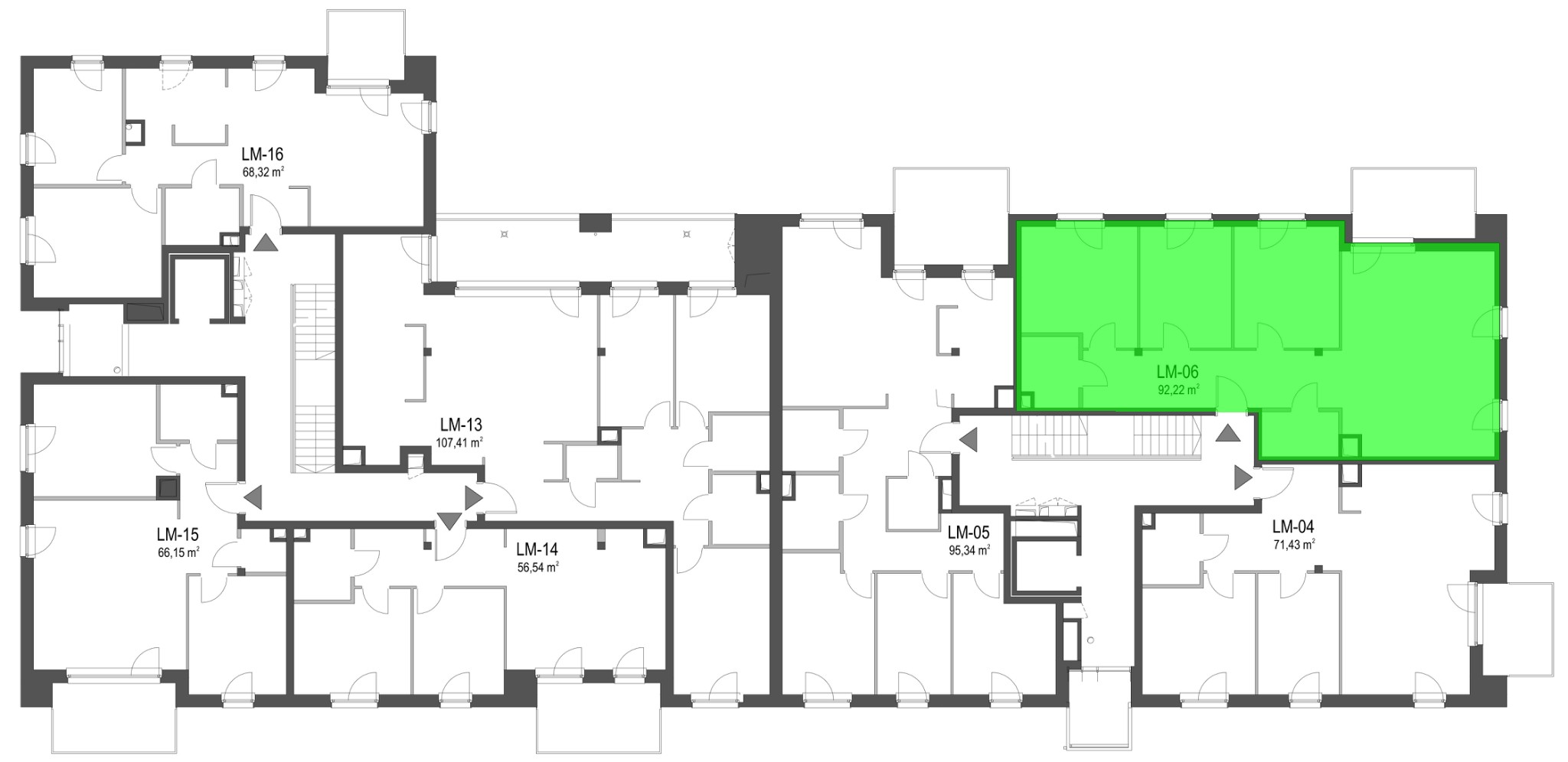
Budynek Szumu Drzew i Kwiatu Paproci K33-2
Powierzchnia 92,22 m2
Piętro 1 (Piętro I)
Pokoje 4
Całkowita cena brutto
2 028 840 PLN
Popup zamykający
Zamknij

Zostaw do siebie kontakt

Oświadczam, że zapoznałem się z polityką prywatności