cena Mieszkania

1 649 180 PLN

cena za metr kw.

26 000 PLN

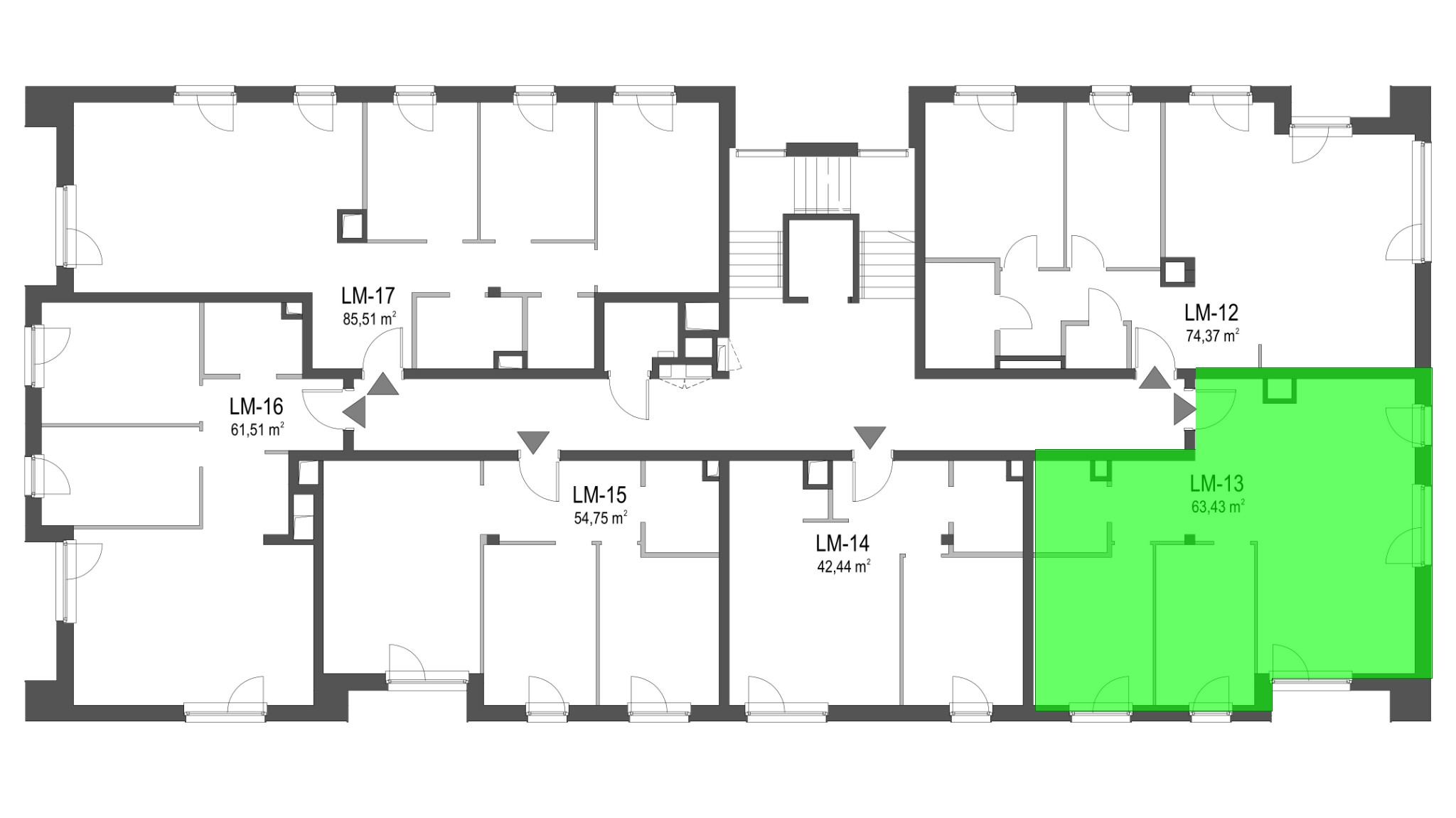
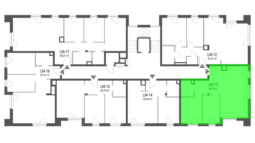
Budynek Szumu Drzew i Kwiatu Paproci K33-3
Powierzchnia 63,43 m2
Piętro 2 (Piętro II)
Pokoje 3
Całkowita cena brutto
1 649 180 PLN
Popup zamykający
Zamknij

Zostaw do siebie kontakt

Oświadczam, że zapoznałem się z polityką prywatności