cena Mieszkania

646 734 PLN

cena za metr kw.

8 200 PLN

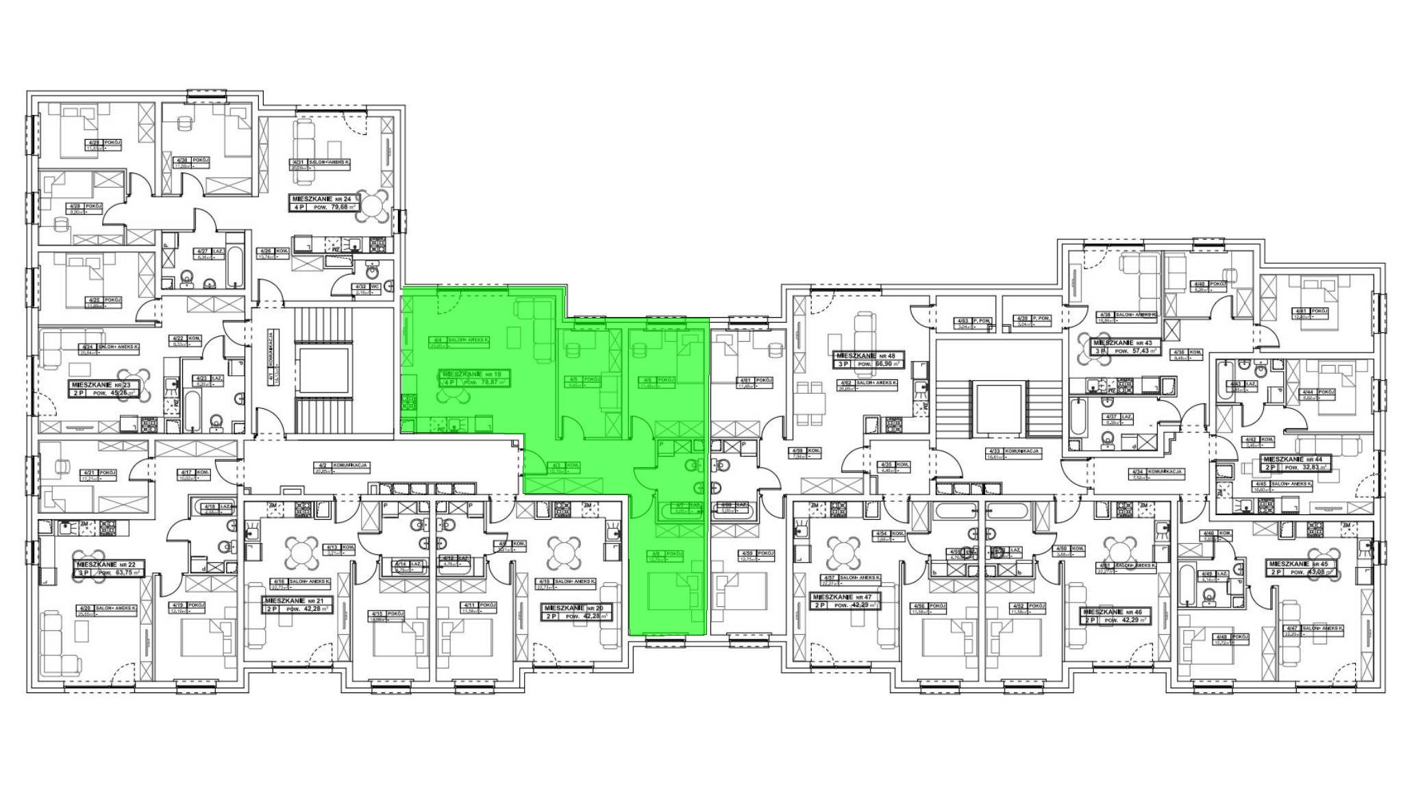
Budynek Żubrów 18C
Powierzchnia 78,87 m2
Piętro 3 (Piętro III)
Pokoje 4
Balkon ok. 8,70 m²
Całkowita cena brutto
646 734 PLN