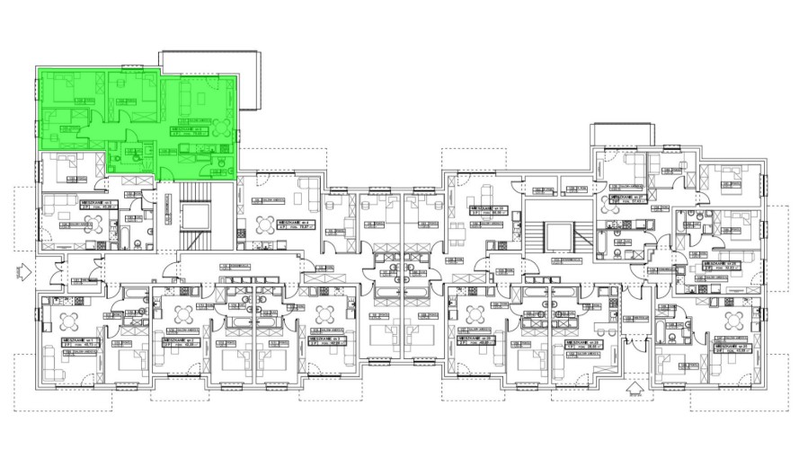
cena Mieszkania

647 271 PLN

cena za metr kw.

8 100 PLN

Budynek Żubrów 18C
Powierzchnia 79,91 m2
Piętro 0 (Parter)
Pokoje 4
Balkon ok. 12,80 m²
Całkowita cena brutto
647 271 PLN