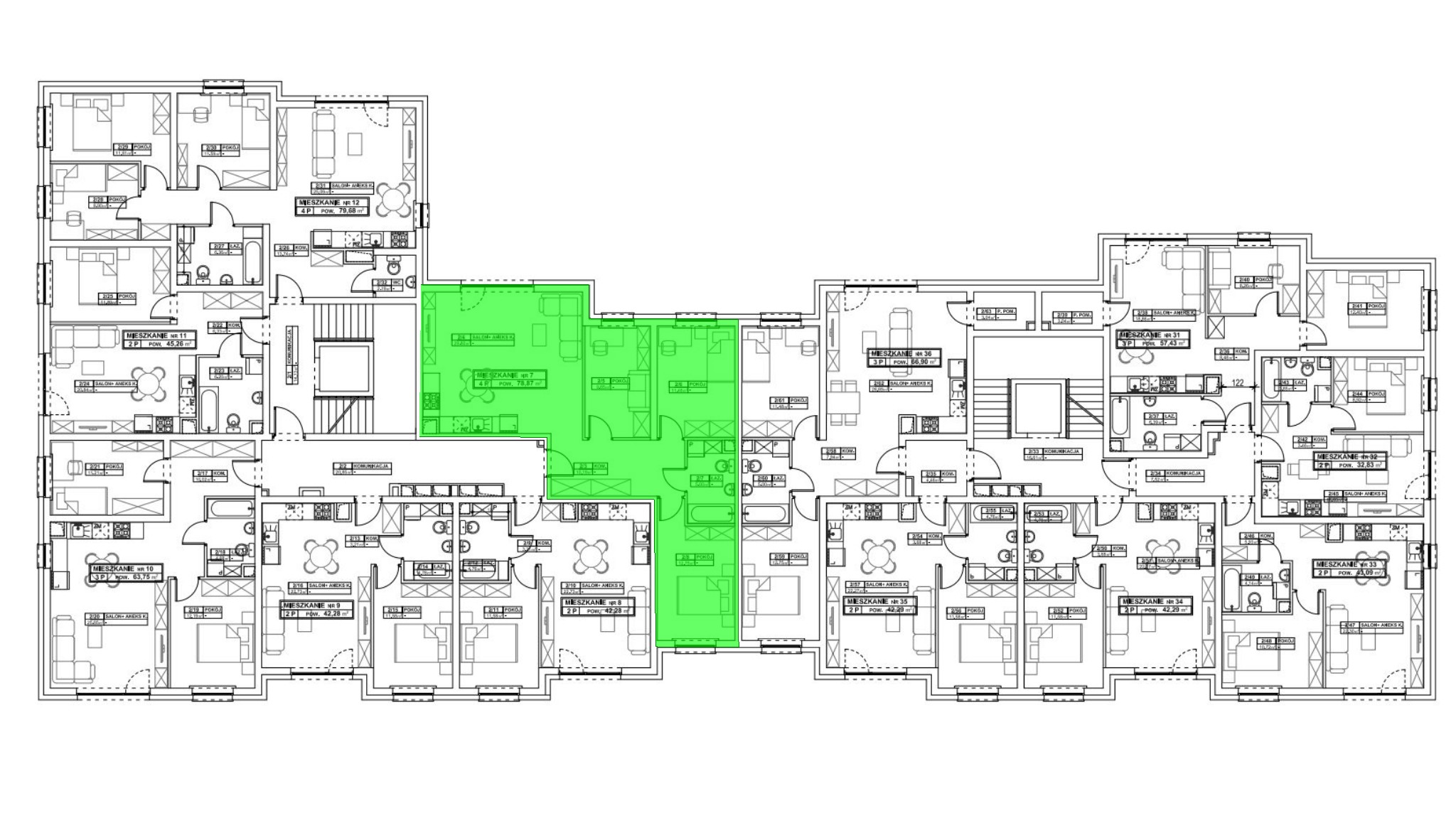
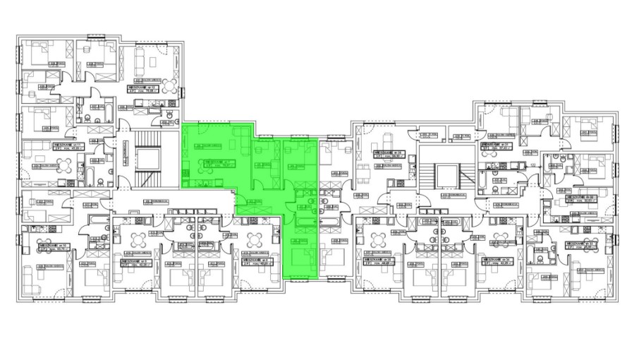
cena Mieszkania

630 960 PLN

cena za metr kw.

8 000 PLN

Budynek Żubrów 18C
Powierzchnia 78,87 m2
Piętro 1 (Piętro I)
Pokoje 4
Balkon ok. 8,70 m²
Całkowita cena brutto
630 960 PLN