cena Mieszkania

500 322 PLN

cena za metr kw.

12 200 PLN

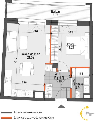
Budynek Kopernika IV
Powierzchnia 41,01 m2
Piętro 2 (Piętro II)
Pokoje 2
Całkowita cena brutto
500 322 PLN