cena Mieszkania

483 513 PLN

cena za metr kw.

12 300 PLN

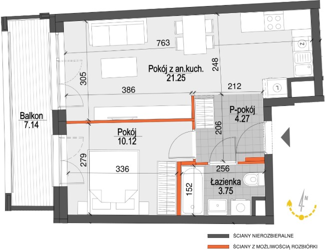
Budynek Kopernika IV
Powierzchnia 39,31 m2
Piętro 2 (Piętro II)
Pokoje 2
Całkowita cena brutto
483 513 PLN