cena Mieszkania

488 312 PLN

cena za metr kw.

12 400 PLN

Budynek Kopernika IV
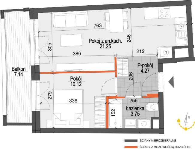
Powierzchnia 39,38 m2
Piętro 3 (Piętro III)
Pokoje 2
Całkowita cena brutto
488 312 PLN