cena Mieszkania

508 524 PLN

cena za metr kw.

12 400 PLN

Budynek Kopernika IV
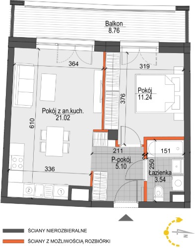
Powierzchnia 41,01 m2
Piętro 4 (Piętro IV)
Pokoje 2
Całkowita cena brutto
508 524 PLN