cena Mieszkania

482 832 PLN

cena za metr kw.

8 400 PLN

Budynek Warszawska Bud. 3
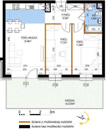
Powierzchnia 57,48 m2
Piętro 0 (Parter)
Pokoje 3
Ogródek ok. 23,85 m²
Całkowita cena brutto
482 832 PLN