cena Mieszkania

332 640 PLN

cena za metr kw.

8 400 PLN

Budynek Warszawska Bud. 3
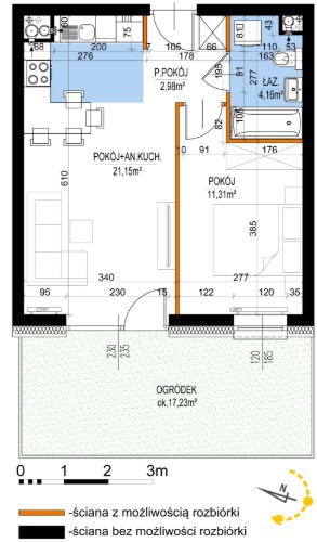
Powierzchnia 39,60 m2
Piętro 0 (Parter)
Pokoje 2
Ogródek ok. 17,23 m²
Całkowita cena brutto
332 640 PLN