cena Mieszkania

642 515 PLN

cena za metr kw.

8 500 PLN

Budynek Warszawska Bud. 3
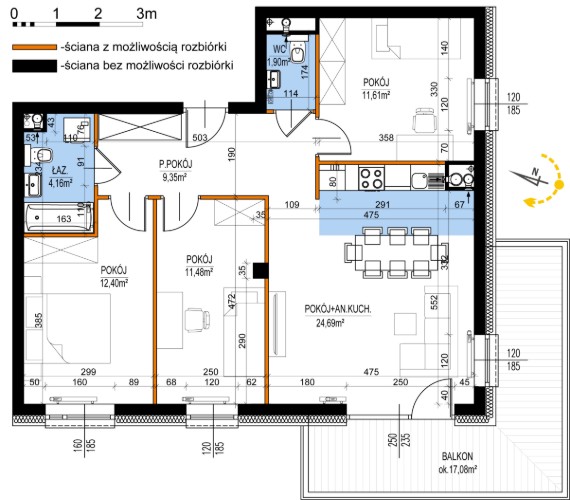
Powierzchnia 75,59 m2
Piętro 1 (Piętro I)
Pokoje 4
Całkowita cena brutto
642 515 PLN