cena Mieszkania

565 824 PLN

cena za metr kw.

8 400 PLN

Budynek Warszawska Bud. 3
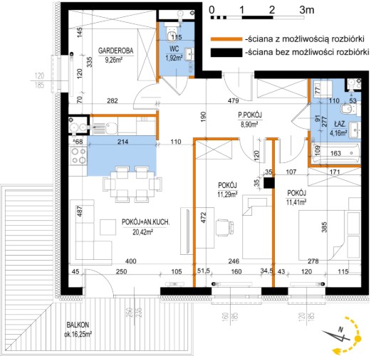
Powierzchnia 67,36 m2
Piętro 2 (Piętro II)
Pokoje 3
Całkowita cena brutto
565 824 PLN