cena Mieszkania

548 604 PLN

cena za metr kw.

8 400 PLN

Budynek Warszawska Bud. 3
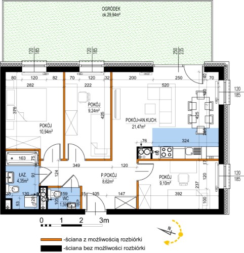
Powierzchnia 65,31 m2
Piętro 0 (Parter)
Pokoje 4
Ogródek ok. 29,94 m²
Całkowita cena brutto
548 604 PLN