cena Mieszkania

680 940 PLN

cena za metr kw.

11 700 PLN

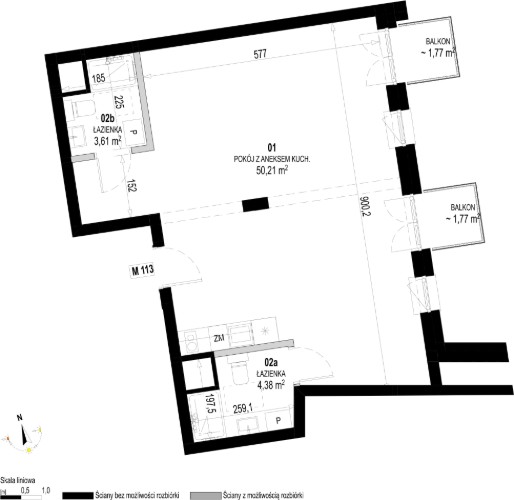
Budynek Św. Rocha Bud.1
Powierzchnia 58,20 m2
Piętro 4 (Piętro IV)
Pokoje 1
Balkon ok. 1,77 m²
Balkon ok. 1,77 m²
Całkowita cena brutto
680 940 PLN