cena Mieszkania

1 254 840 PLN

cena za metr kw.

12 000 PLN

cena Schowka

8 960 PLN

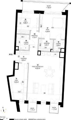
Budynek Św. Rocha Bud.1
Powierzchnia 104,57 m2
Piętro 5 (Piętro V)
Pokoje 4
Balkon ok. 7,82 m²
Balkon ok. 1,77 m²
Balkon ok. 1,77 m²
Całkowita cena brutto
1 263 800 PLN
Dodatkowo
Schowek
8 960 PLN