cena Lokalu usługowego (netto)

1 132 600 PLN

cena za metr kw.

10 000 PLN

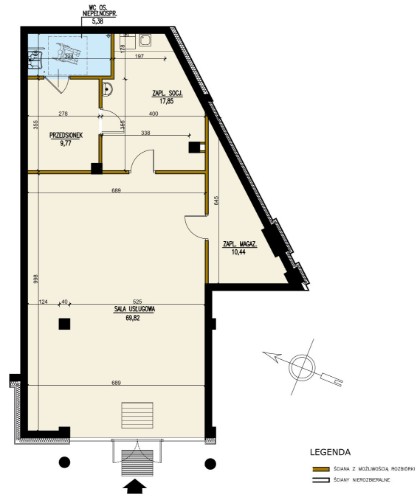
Budynek Czarna 2
Powierzchnia 113,26 m2
Piętro 0 (Parter)
Całkowita cena netto
1 132 600 PLN