cena Mieszkania

789 032 PLN

cena za metr kw.

11 600 PLN

Budynek Sienkiewicza 71/73
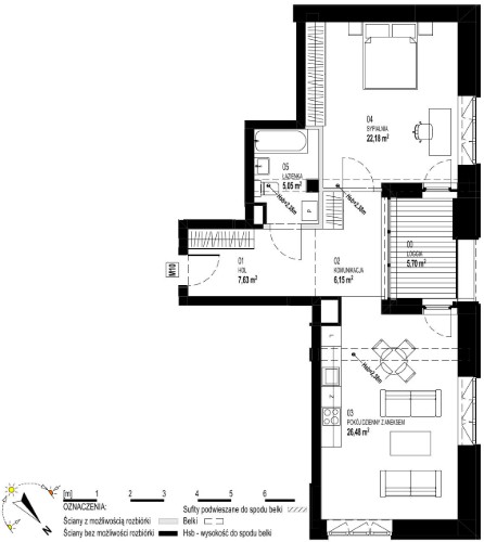
Powierzchnia 68,02 m2
Piętro 2 (Piętro II)
Pokoje 2
Loggia 7,36 m²
Całkowita cena brutto
789 032 PLN