cena Mieszkania

563 040 PLN

cena za metr kw.

12 000 PLN

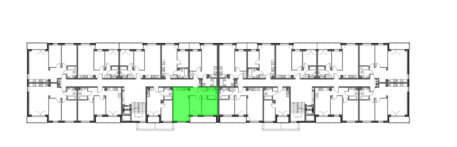
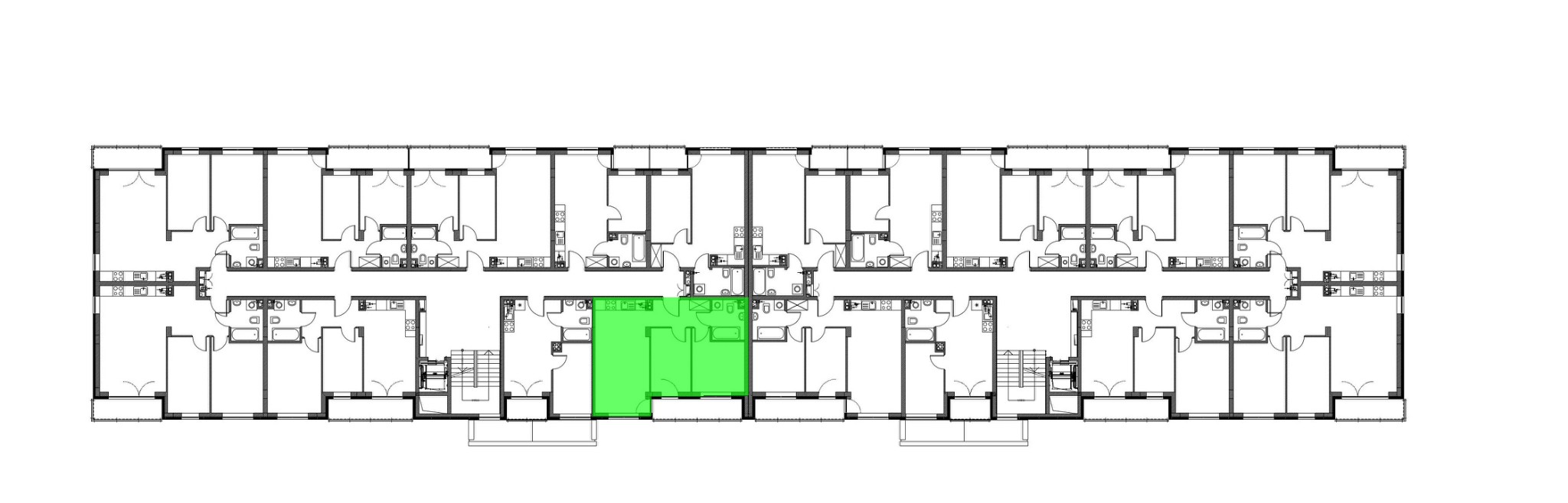
Budynek Konik Polny Budynek A
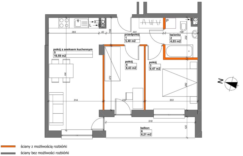
Powierzchnia 46,92 m2
Piętro 1 (Piętro I)
Pokoje 3
Całkowita cena brutto
563 040 PLN