cena Mieszkania

538 996 PLN

cena za metr kw.

12 200 PLN

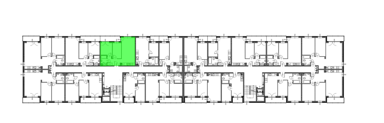
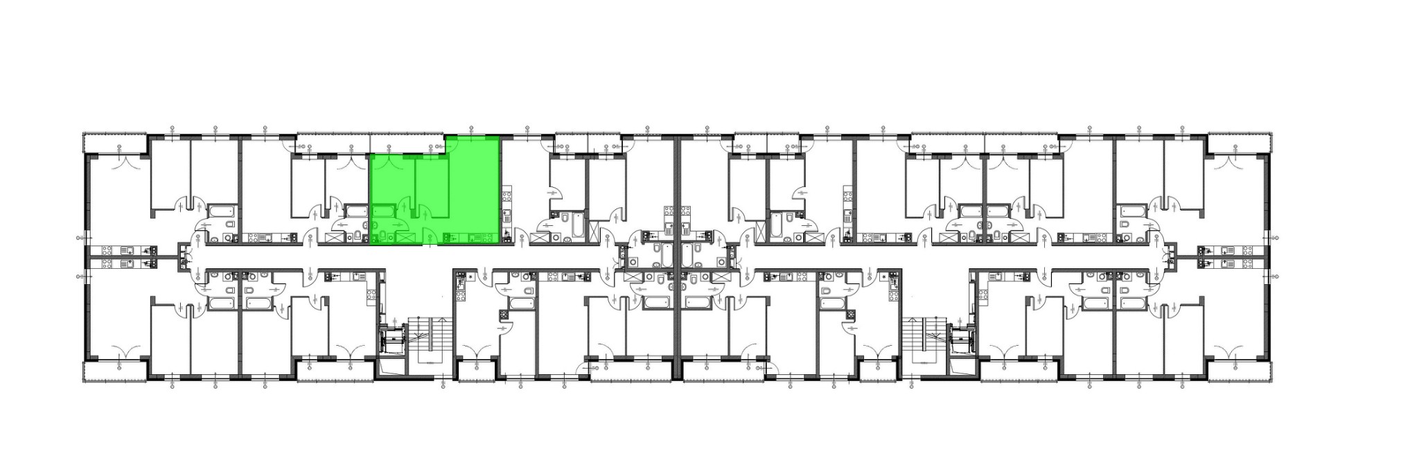
Budynek Konik Polny Budynek A
Powierzchnia 44,18 m2
Piętro 2 (Piętro II)
Pokoje 3
Całkowita cena brutto
538 996 PLN