cena Mieszkania

572 424 PLN

cena za metr kw.

12 200 PLN

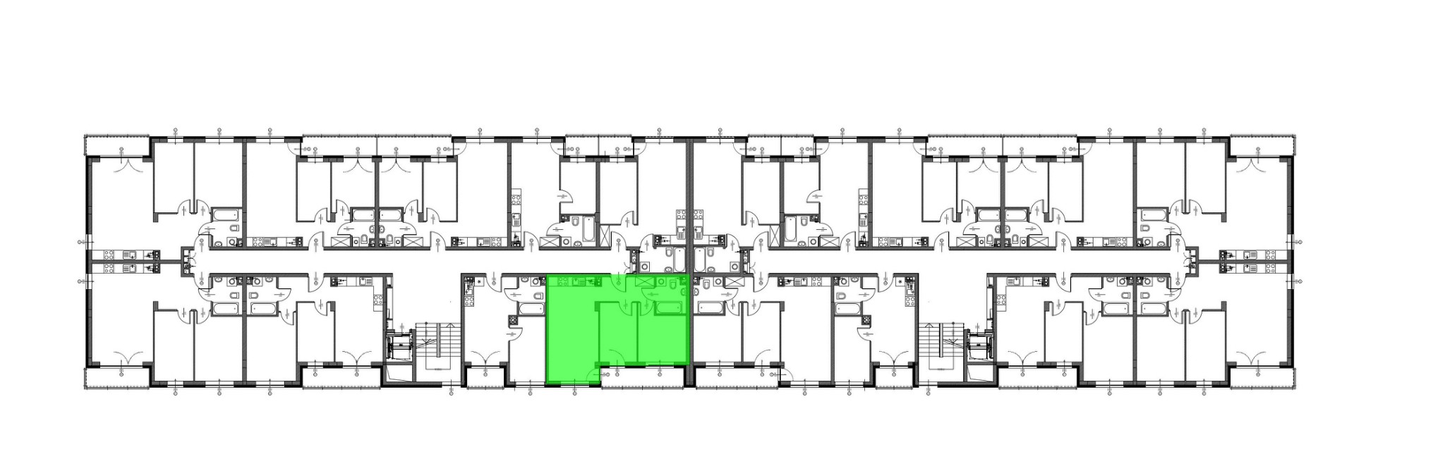
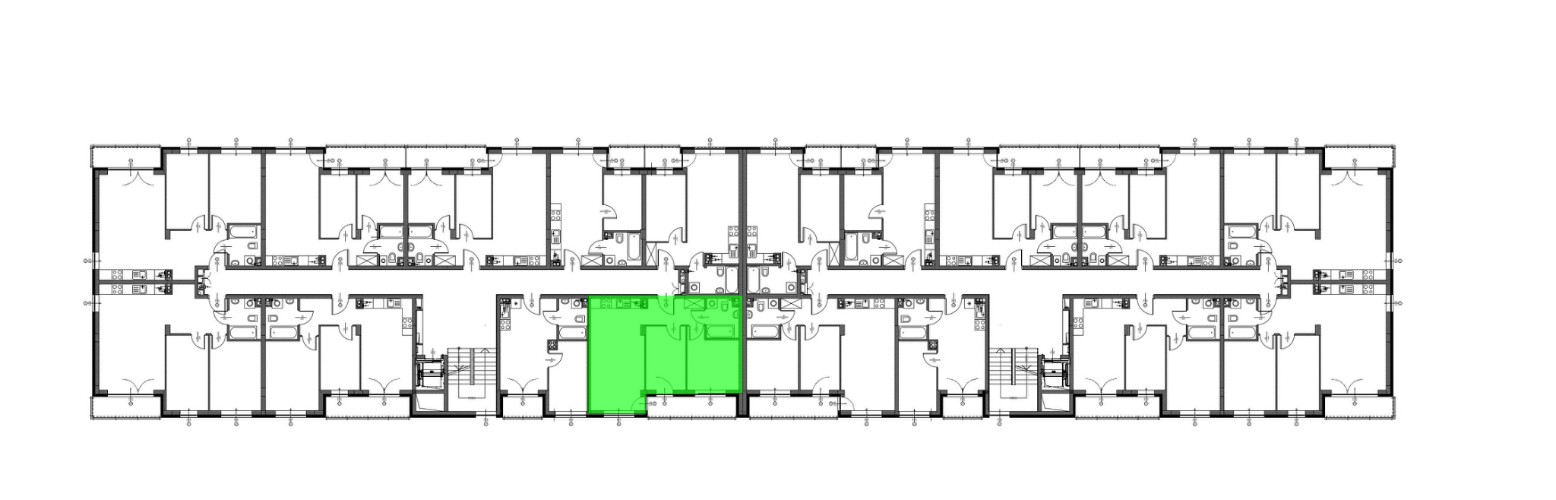
Budynek Konik Polny Budynek A
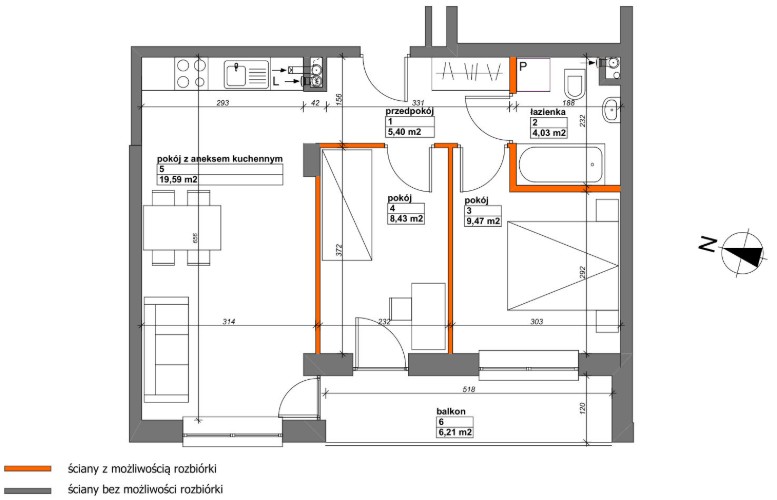
Powierzchnia 46,92 m2
Piętro 2 (Piętro II)
Pokoje 3
Całkowita cena brutto
572 424 PLN