cena Mieszkania

577 116 PLN

cena za metr kw.

12 300 PLN

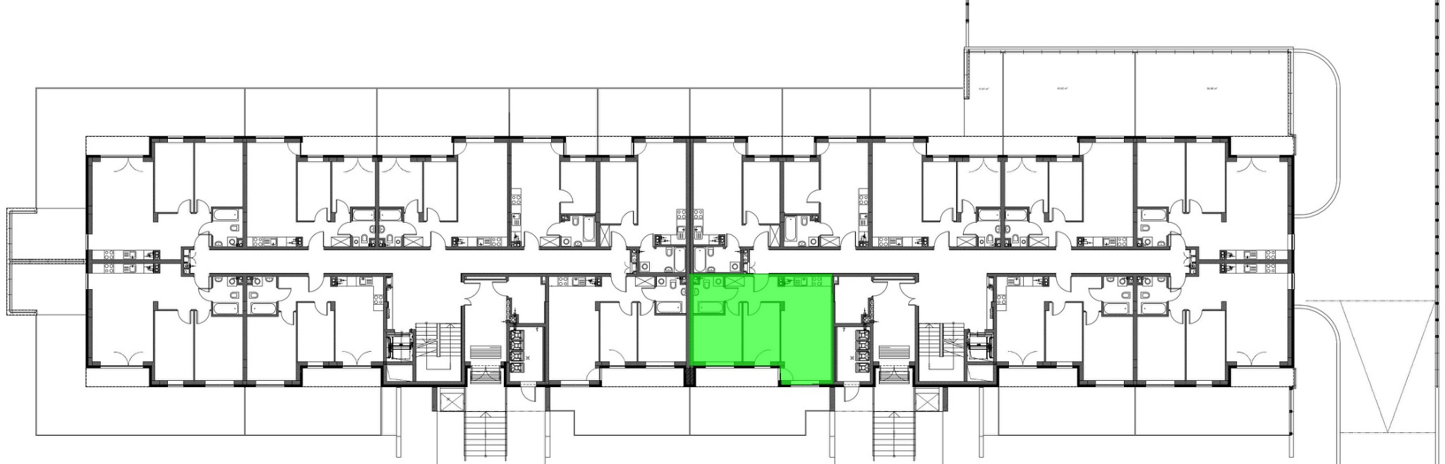
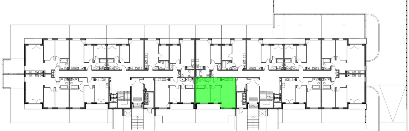
Budynek Konik Polny Budynek A
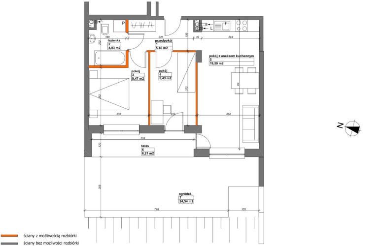
Powierzchnia 46,92 m2
Piętro 0 (Parter)
Pokoje 3
Całkowita cena brutto
577 116 PLN