cena Mieszkania

754 816 PLN

cena za metr kw.

12 800 PLN

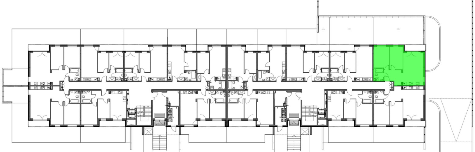
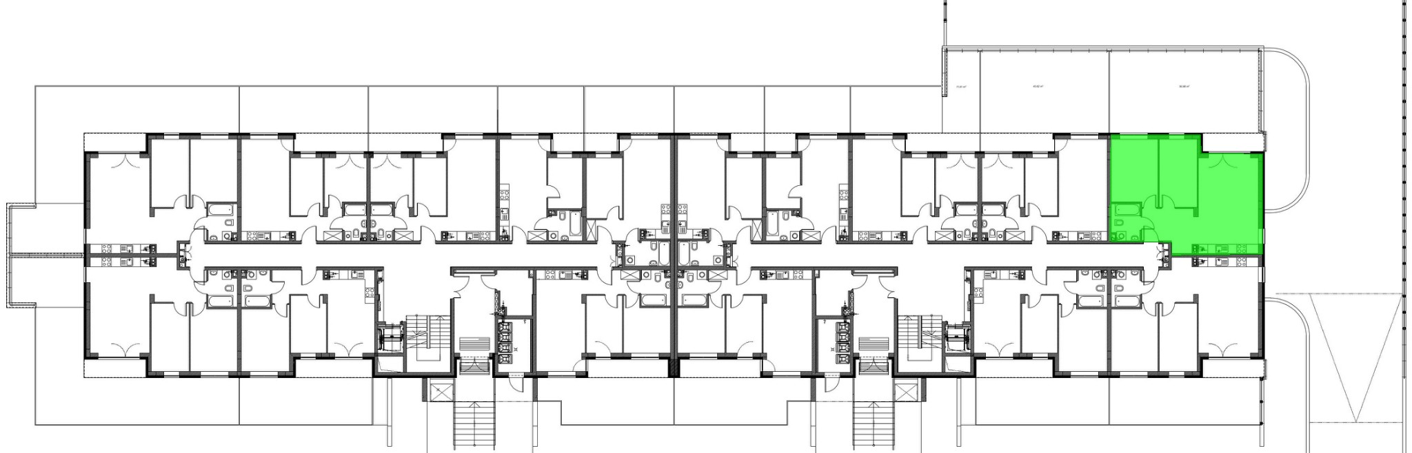
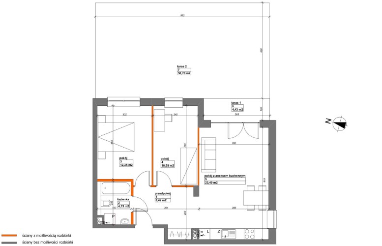
Budynek Konik Polny Budynek A
Powierzchnia 58,97 m2
Piętro 0 (Parter)
Pokoje 3
Całkowita cena brutto
754 816 PLN