cena Mieszkania

954 105 PLN

cena za metr kw.

11 150 PLN

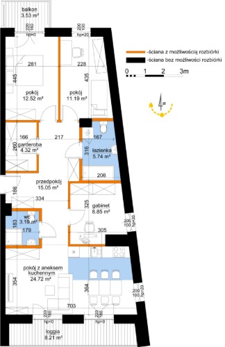
Budynek Młynowa bud. 1
Powierzchnia 85,57 m2
Piętro 1 (Piętro I)
Pokoje 4
Całkowita cena brutto
954 105 PLN