cena Mieszkania

1 005 447 PLN

cena za metr kw.

11 750 PLN

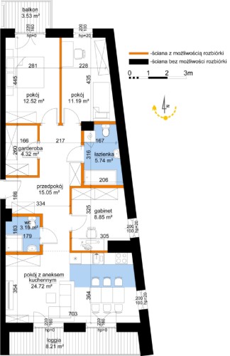
Budynek Młynowa bud. 1
Powierzchnia 85,57 m2
Piętro 3 (Piętro III)
Pokoje 4
Całkowita cena brutto
1 005 447 PLN