cena Mieszkania

1 014 242 PLN

cena za metr kw.

11 850 PLN

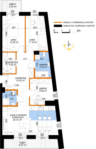
Budynek Młynowa bud. 1
Powierzchnia 85,59 m2
Piętro 4 (Piętro IV)
Pokoje 4
Całkowita cena brutto
1 014 242 PLN