cena Mieszkania

819 583 PLN

cena za metr kw.

11 350 PLN

Budynek Młynowa bud. 1
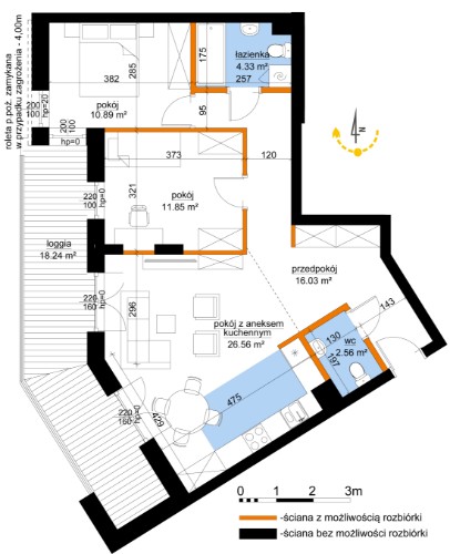
Powierzchnia 72,21 m2
Piętro 3 (Piętro III)
Pokoje 3
Całkowita cena brutto
819 583 PLN