cena Mieszkania

826 804 PLN

cena za metr kw.

11 450 PLN

Budynek Młynowa bud. 1
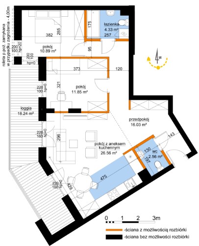
Powierzchnia 72,21 m2
Piętro 4 (Piętro IV)
Pokoje 3
Całkowita cena brutto
826 804 PLN