cena Mieszkania

848 585 PLN

cena za metr kw.

11 750 PLN

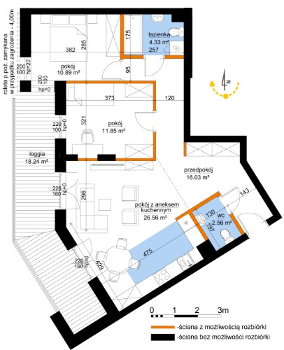
Budynek Młynowa bud. 1
Powierzchnia 72,22 m2
Piętro 7 (Piętro VII)
Pokoje 3
Całkowita cena brutto
848 585 PLN