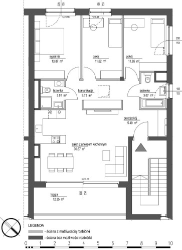
cena Mieszkania

1 802 600 PLN

cena za metr kw.

20 000 PLN

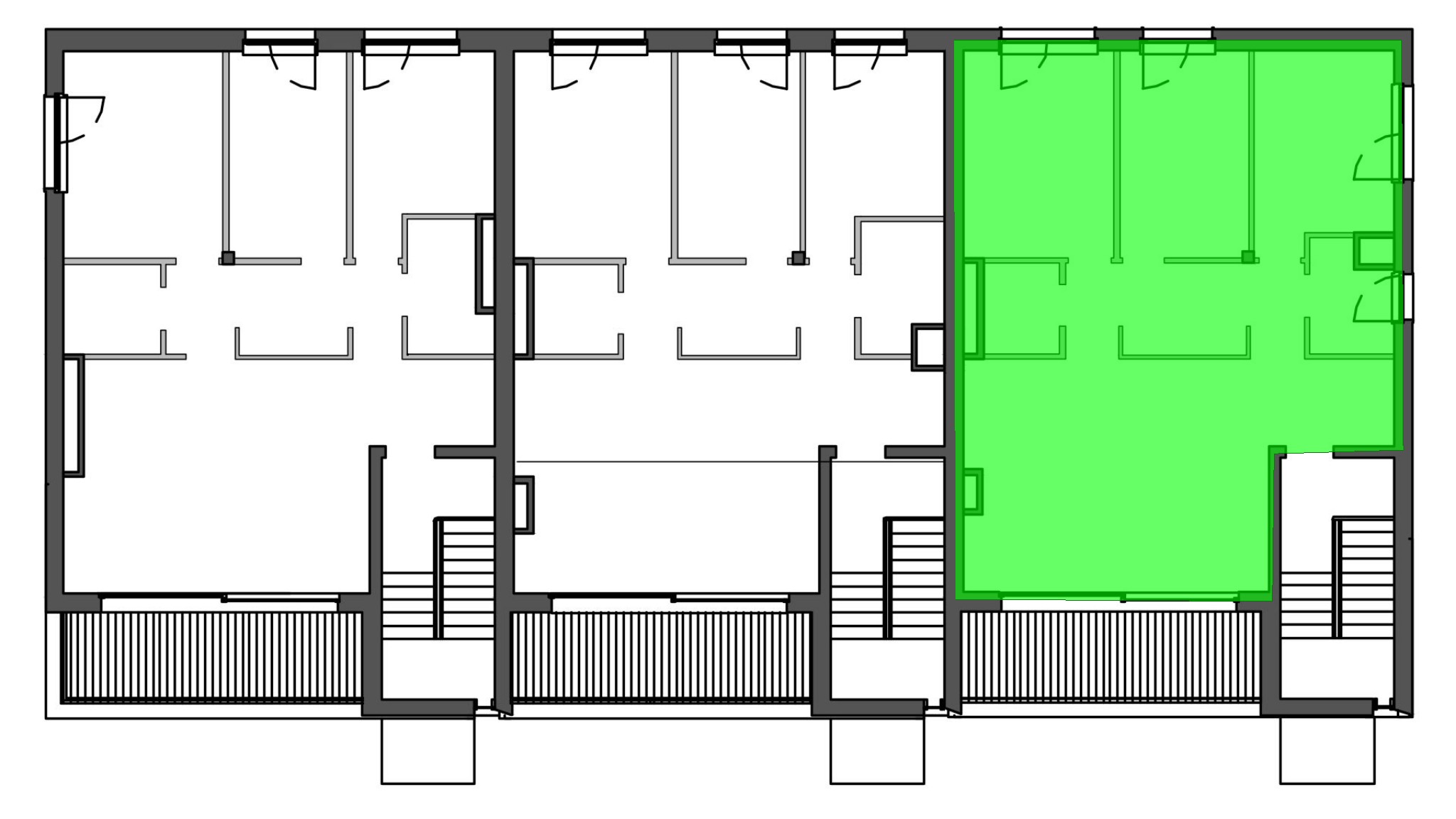
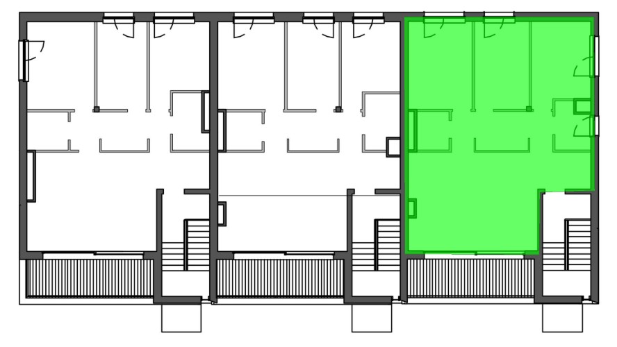
Budynek Szumu Drzew i Kwiatu Paproci K23 S2
Powierzchnia 90,13 m2
Piętro 2 (Piętro II)
Pokoje 4
Całkowita cena brutto
1 802 600 PLN