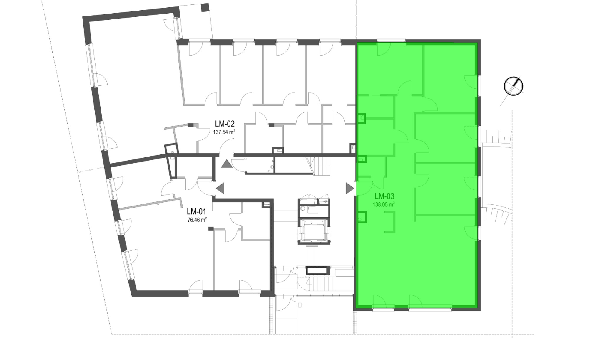
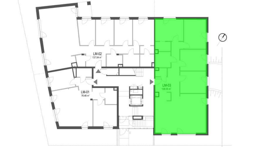
cena Mieszkania

3 589 300 PLN

cena za metr kw.

26 000 PLN

Budynek Szumu Drzew I Kwiatu Paproci K23 WM3
Powierzchnia 138,05 m2
Piętro 0 (Parter)
Pokoje 5
Całkowita cena brutto
3 589 300 PLN
Popup zamykający
Zamknij

Zostaw do siebie kontakt

Oświadczam, że zapoznałem się z polityką prywatności