cena Mieszkania

3 326 500 PLN

cena za metr kw.

25 000 PLN

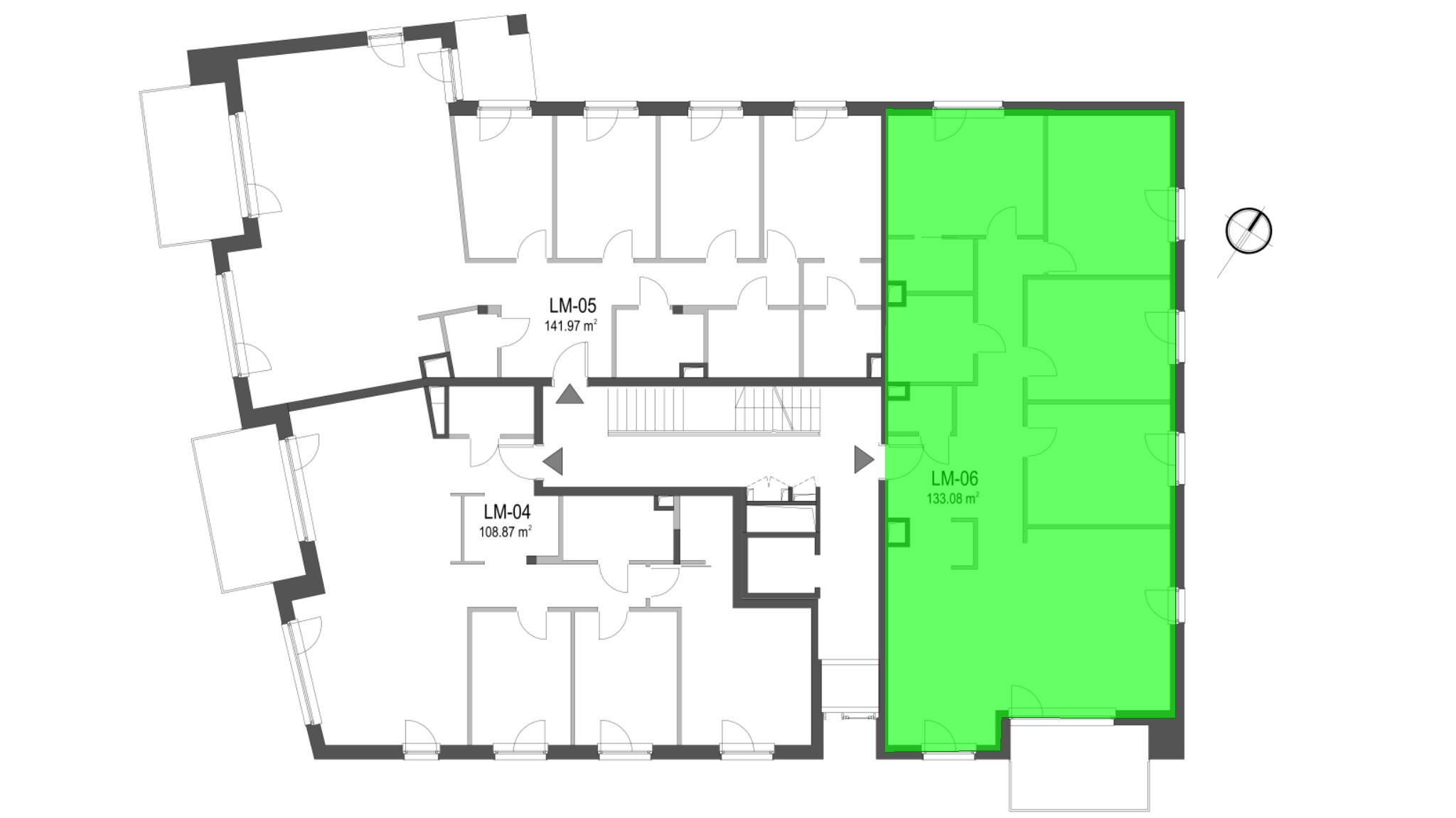
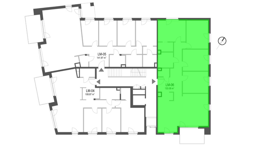
Budynek Szumu Drzew I Kwiatu Paproci K23 WM3
Powierzchnia 133,06 m2
Piętro 1 (Piętro I)
Pokoje 5
Całkowita cena brutto
3 326 500 PLN
Popup zamykający
Zamknij

Zostaw do siebie kontakt

Oświadczam, że zapoznałem się z polityką prywatności