cena Mieszkania

3 691 200 PLN

cena za metr kw.

26 000 PLN

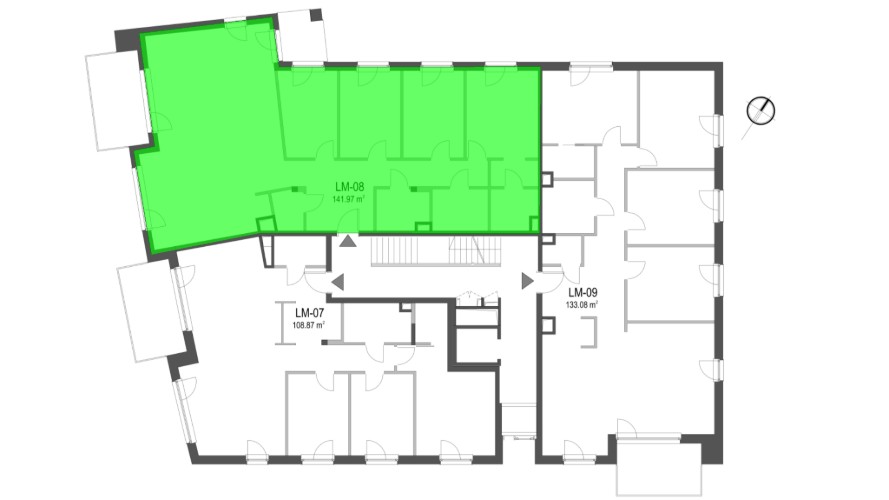
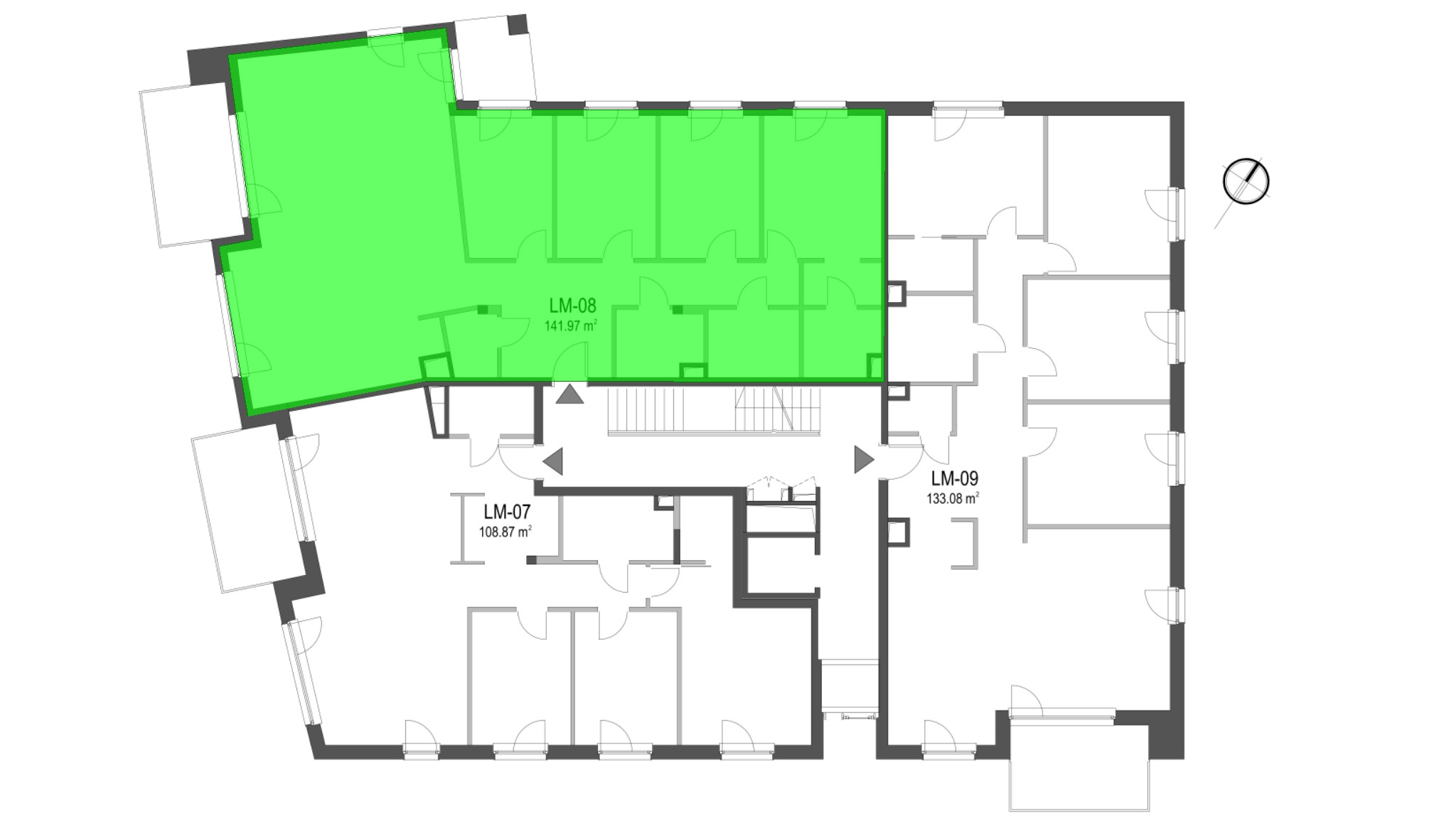
Budynek Szumu Drzew I Kwiatu Paproci K23 WM3
Powierzchnia 141,97 m2
Piętro 2 (Piętro II)
Pokoje 5
Całkowita cena brutto
3 691 200 PLN
Popup zamykający
Zamknij

Zostaw do siebie kontakt

Oświadczam, że zapoznałem się z polityką prywatności