cena Mieszkania

1 725 800 PLN

cena za metr kw.

21 500 PLN

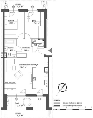
Budynek Szumu Drzew i Kwiatu Paproci K33-1
Powierzchnia 80,27 m2
Piętro 0 (Parter)
Pokoje 3
Całkowita cena brutto
1 725 800 PLN