cena Mieszkania

1 430 800 PLN

cena za metr kw.

21 500 PLN

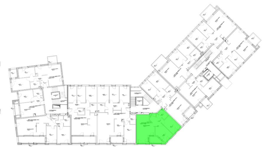
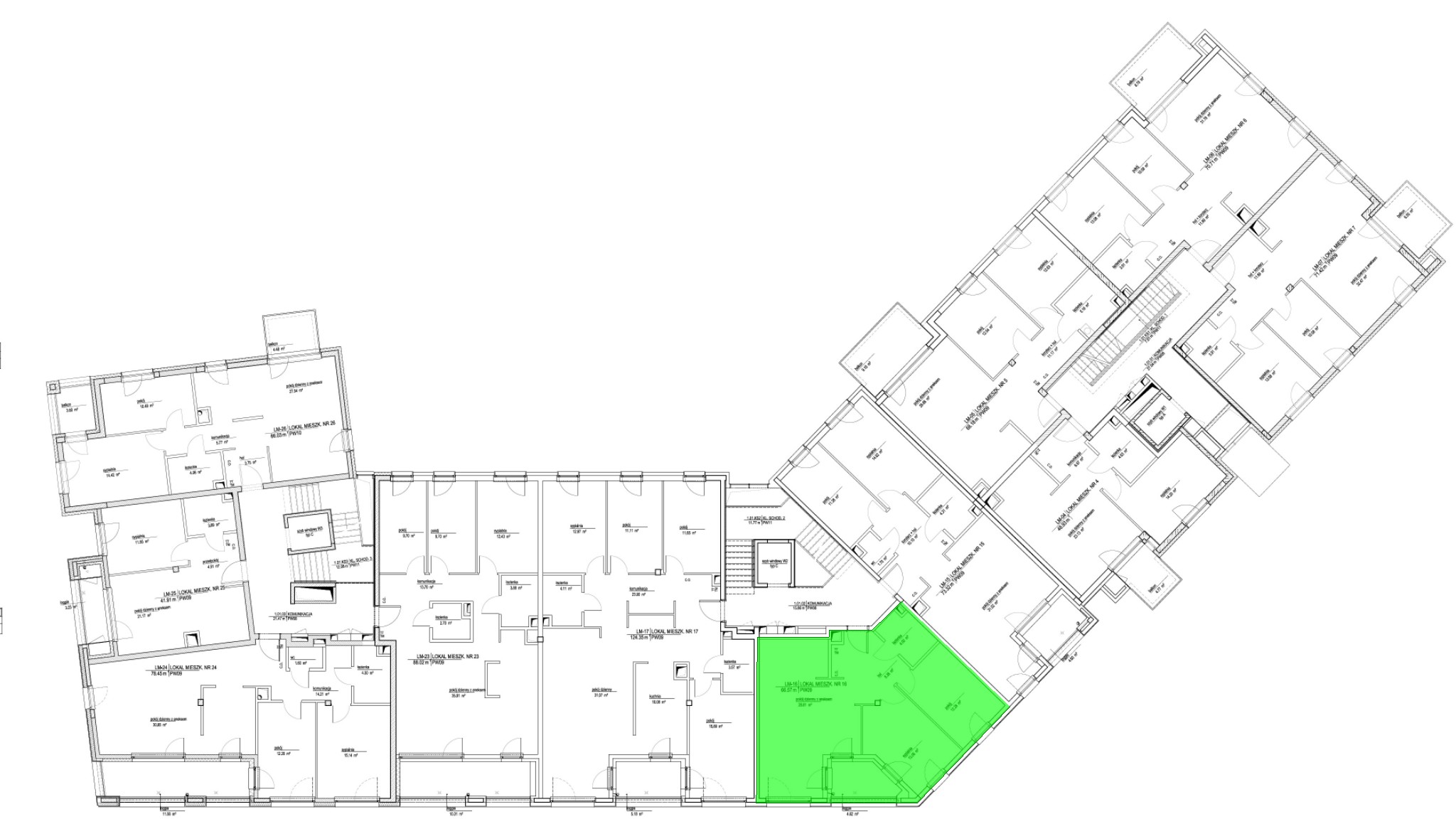
Budynek Szumu Drzew i Kwiatu Paproci K33-1
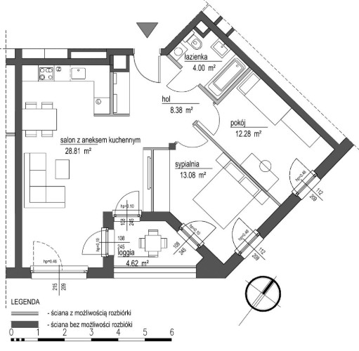
Powierzchnia 66,55 m2
Piętro 1 (Piętro I)
Pokoje 3
Całkowita cena brutto
1 430 800 PLN