cena Mieszkania

1 613 200 PLN

cena za metr kw.

21 999 PLN

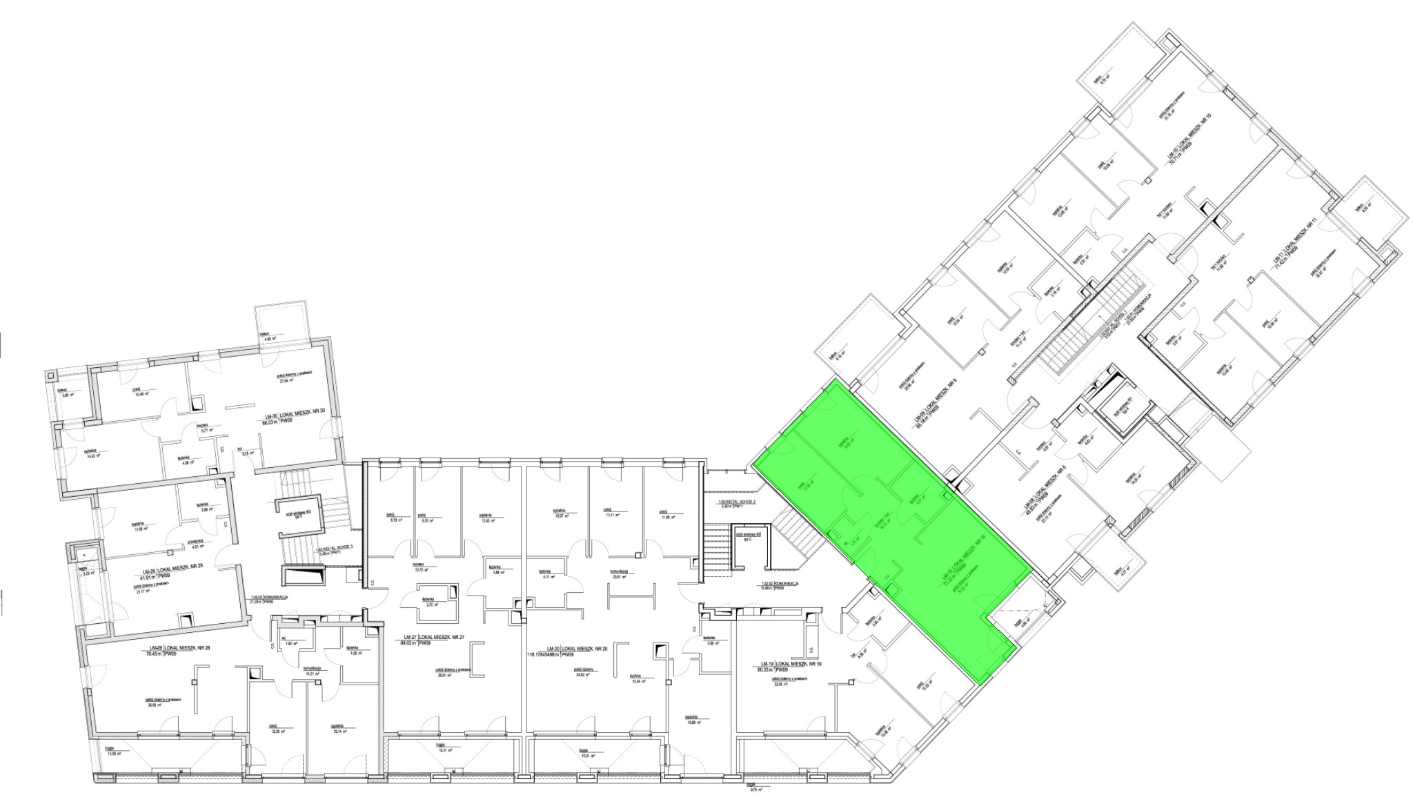
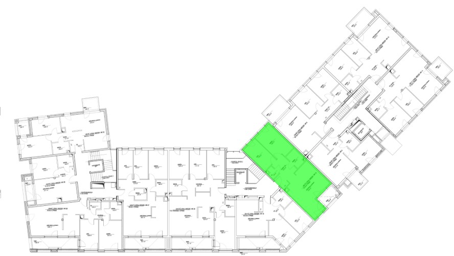
Budynek Szumu Drzew i Kwiatu Paproci K33-1
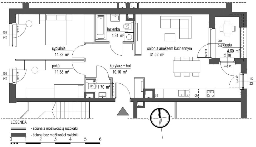
Powierzchnia 73,33 m2
Piętro 2 (Piętro II)
Pokoje 3
Całkowita cena brutto
1 613 200 PLN