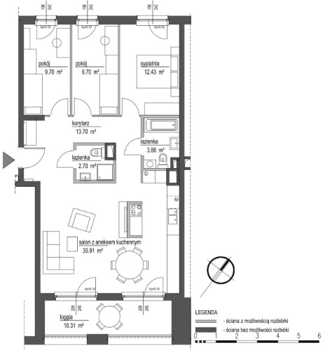
cena Mieszkania

1 980 400 PLN

cena za metr kw.

22 499 PLN

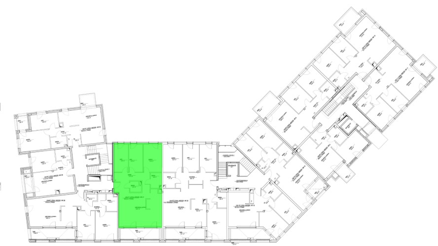
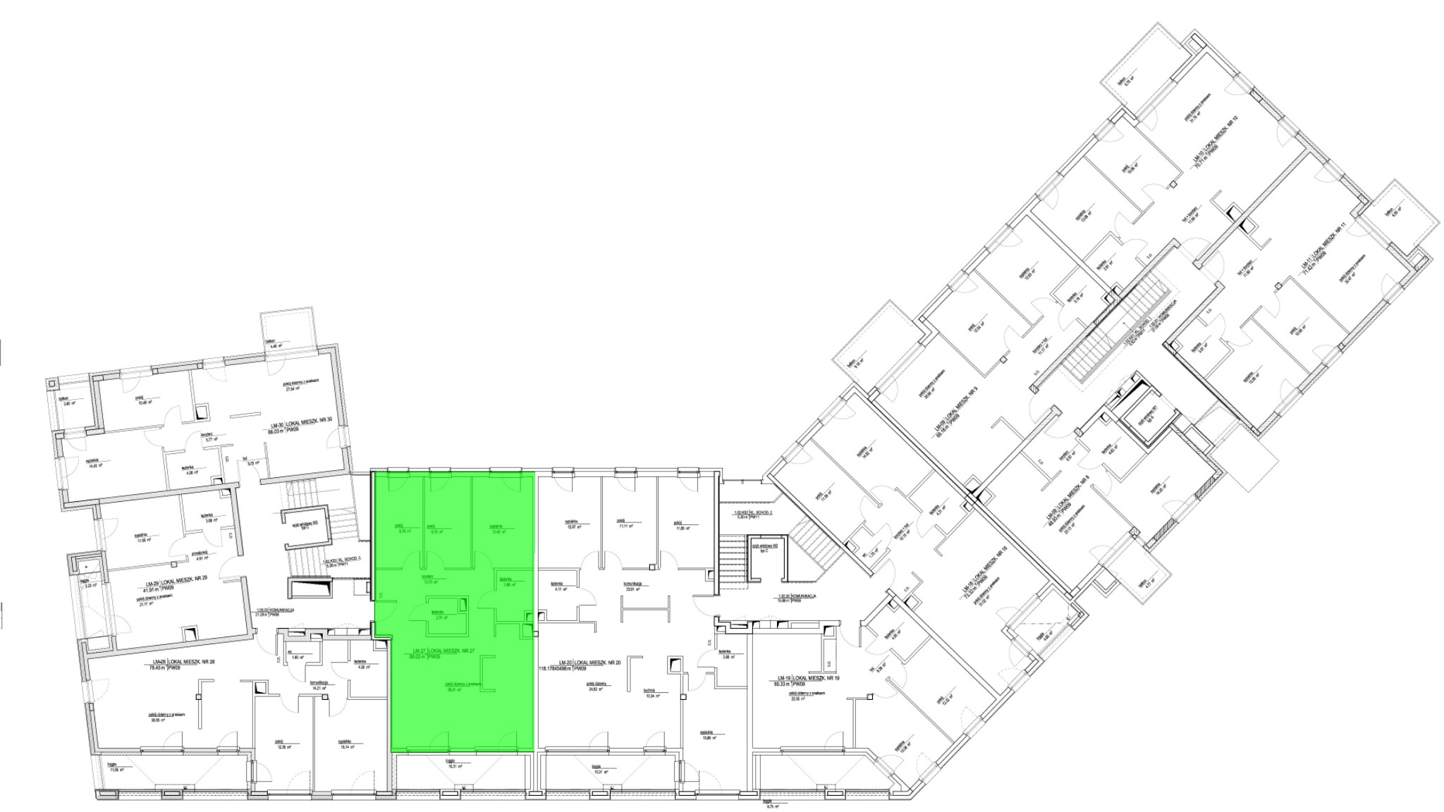
Budynek Szumu Drzew i Kwiatu Paproci K33-1
Powierzchnia 88,02 m2
Piętro 2 (Piętro II)
Pokoje 4
Całkowita cena brutto
1 980 400 PLN