cena Mieszkania

1 765 100 PLN

cena za metr kw.

22 500 PLN

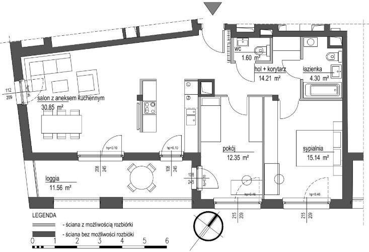
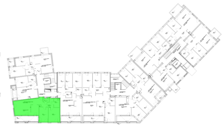
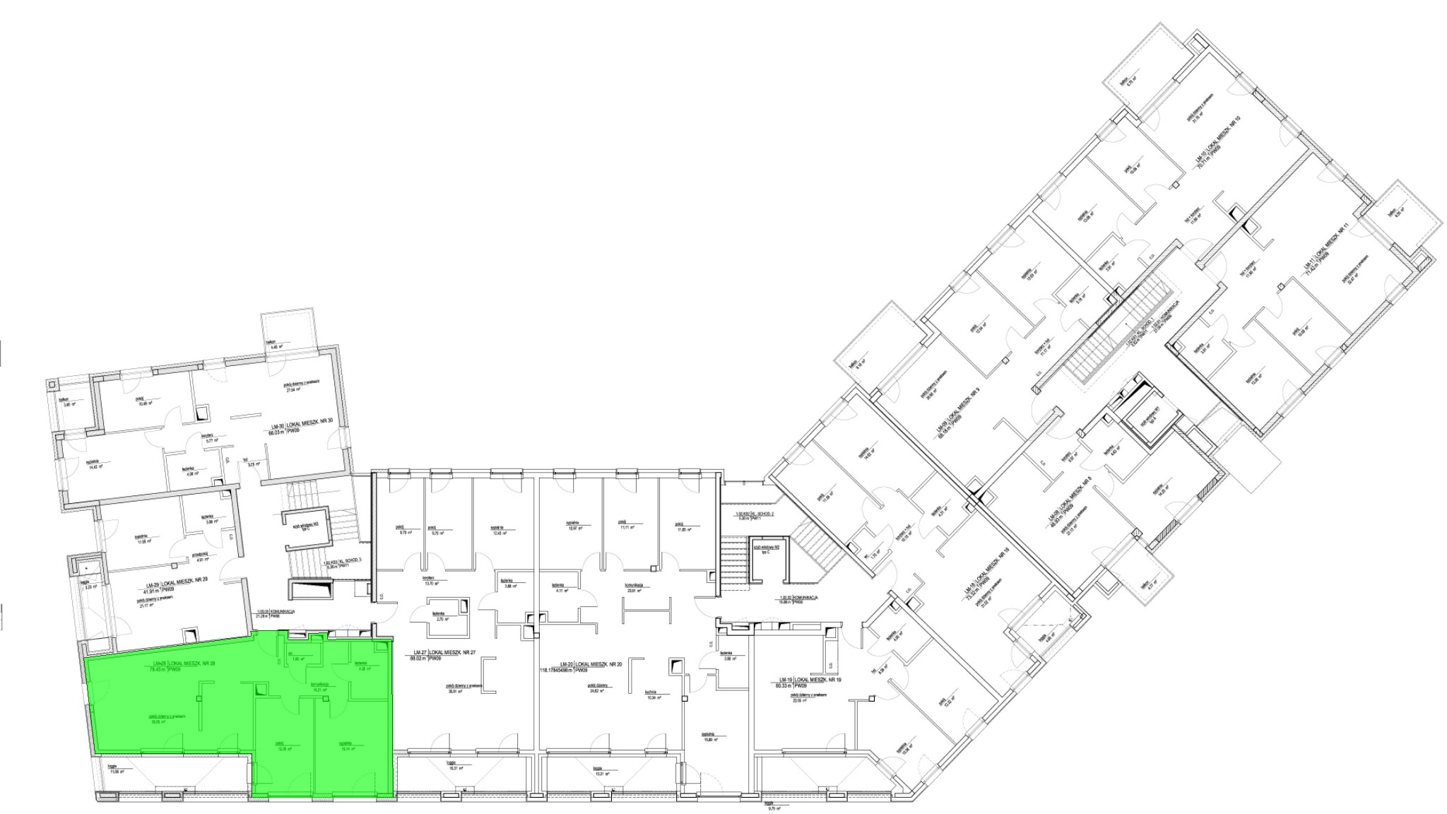
Budynek Szumu Drzew i Kwiatu Paproci K33-1
Powierzchnia 78,45 m2
Piętro 2 (Piętro II)
Pokoje 3
Całkowita cena brutto
1 765 100 PLN